|
OrdinaryMeeting Notice and Agenda
An Ordinary Meeting of the Bega Valley Shire Council will be held at Council Chambers, Biamanga Room, Bega Valley Commemorative Civic Centre, Bega on Wednesday, 15 October 2025 commencing at 2:00pm to consider and resolve on the matters set out in the attached Agenda.
|
Council meetings are recorded and live streamed to the Internet for public viewing. By entering the Chambers during an open session of Council, you consent to your attendance and participation being recorded.
The recording will be archived and made available on Council’s website www.begavalley.nsw.gov.au. All care is taken to maintain your privacy; however as a visitor of the public gallery, your presence may be recorded.
The Agendas for Council Meetings and Council Reports for each meeting will be available to the public on Council’s website as close as possible to 5.00 pm on the Thursday prior to each Ordinary Meeting. A hard copy is also made available at the Bega Administration Building reception desk and on the day of the meeting, in the Council Chambers.
The Minutes of Council Meetings are available on Council's Website as close as possible to 5.00 pm on the Monday after the Meeting.
1. Please be aware that the recommendations in the Council Meeting Agenda are recommendations to the Council for consideration. They are not the resolutions (decisions) of Council.
2. Background for reports is provided by staff to the Chief Executive Officer for presentation to Council.
3. The Council may adopt these recommendations, amend the recommendations, determine a completely different course of action, or it may decline to pursue any course of action.
4. The decision of the Council becomes the resolution of the Council, and is recorded in the Minutes of that meeting.
5. The Minutes of each Council meeting are published in draft format, and are confirmed by Councillors, with amendments if necessary, at the next available Council Meeting.
If you require any further information or clarification regarding a report to Council, please contact Council’s Executive Assistant who can provide you with the appropriate contact details
Phone (02 6499 2222) or email execassist@begavalley.nsw.gov.au.
· Is the decision or conduct legal?
· Is it consistent with Government policy, Council’s objectives and Code of Conduct?
· What will the outcome be for you, your colleagues, the Council, anyone else?
· Does it raise a conflict of interest?
· Do you stand to gain personally at public expense?
· Can the decision be justified in terms of public interest?
· Would it withstand public scrutiny?
A conflict of interest is a clash between private interest and public duty. There are two types of conflict:
· Pecuniary – regulated by the Local Government Act 1993 and Office of Local Government
· Non-pecuniary – regulated by Codes of Conduct and policy. ICAC, Ombudsman, Office of Local Government (advice only). If declaring a Non-Pecuniary Conflict of Interest, Councillors can choose to either disclose and vote, disclose and not vote or leave the Chamber.
· Is it likely I could be influenced by personal interest in carrying out my public duty?
· Would a fair and reasonable person believe I could be so influenced?
· Conflict of interest is closely tied to the layperson’s definition of ‘corruption’ – using public office for private gain.
· Important to consider public perceptions of whether you have a conflict of interest.
1st Do I have private interests affected by a matter I am officially involved in?
2nd Is my official role one of influence or perceived influence over the matter?
3rd Do my private interests conflict with my official role?
For more detailed definitions refer to Sections 442, 448 and 459 or the Local Government Act 1993 and Bega Valley Shire Council (and Model) Code of Conduct, Part 4 – conflict of interest.
Whilst seeking advice is generally useful, the ultimate decision rests with the person concerned.Officers of the following agencies are available during office hours to discuss the obligations placed on Councillors, officers and community committee members by various pieces of legislation, regulation and codes.
|
Contact |
Phone |
|
Website |
|
Bega Valley Shire Council |
(02) 6499 2222 |
council@begavalley.nsw.gov.au |
www.begavalley.nsw.gov.au |
|
ICAC |
8281 5999 Toll Free 1800 463 909 |
icac@icac.nsw.gov.au |
www.icac.nsw.gov.au |
|
Office of Local Government |
(02) 4428 4100 |
olg@olg.nsw.gov.au |
http://www.olg.nsw.gov.au/ |
|
NSW Ombudsman |
(02) 8286 1000 Toll Free 1800 451 524 |
nswombo@ombo.nsw.gov.au |
Under the provisions of Section 451(1) of the Local Government Act 1993 (pecuniary interests) and Part 4 of the Model Code of Conduct prescribed by the Local Government (Discipline) Regulation (conflict of interests) it is necessary for you to disclose the nature of the interest when making a disclosure of a pecuniary interest or a non-pecuniary conflict of interest at a meeting.
The following form should be completed and handed to the Chief Executive Officer as soon as practible once the interest is identified. Declarations are made at Item 3 of the Agenda: Declarations - Pecuniary, Non-Pecuniary and Political Donation Disclosures, and prior to each Item being discussed:
Council meeting held on __________(day) / ___________(month) /____________(year)
|
Item no & subject |
|
|
Pecuniary Interest
|
In my opinion, my interest is pecuniary and I am therefore required to take the action specified in section 451(2) of the Local Government Act 1993 and or any other action required by the Chief Executive Officer. |
|
Significant Non-pecuniary conflict of interest |
– In my opinion, my interest is non-pecuniary but significant. I am unable to remove the source of conflict. I am therefore required to treat the interest as if it were pecuniary and take the action specified in section 451(2) of the Local Government Act 1993. |
|
Non-pecuniary conflict of interest |
In my opinion, my interest is non-pecuniary and less than significant. I therefore make this declaration as I am required to do pursuant to clause 5.11 of Council’s Code of Conduct. However, I intend to continue to be involved with the matter. |
|
Nature of interest |
Be specific and include information such as : · The names of any person or organization with which you have a relationship · The nature of your relationship with the person or organization · The reason(s) why you consider the situation may (or may be perceived to) give rise to a conflict between your personal interests and your public duty as a Councillor. |
|
If Pecuniary |
Leave chamber |
|
If Non-pecuniary (tick one) |
Disclose & vote Disclose & not vote Leave chamber |
|
Reason for action proposed |
Clause 5.11 of Council’s Code of Conduct provides that if you determine that a non-pecuniary conflict of interest is less than significant and does not require further action, you must provide an explanation of why you consider that conflict does not require further action in the circumstances |
|
Print Name |
I disclose the above interest and acknowledge that I will take appropriate action as I have indicated above. |
|
Signed |
|
NB: Please complete a separate form for each Item on the Council Agenda on which you are declaring an interest.
|
15 October 2025 |
Statement of Ethical Obligations
Recommendation
That the Minutes of the Ordinary Meeting held on 17 September 2025 as circulated, be taken as read and confirmed.
Pecuniary, Non-Pecuniary and Political Donation Disclosures to be declared and tabled. Declarations also to be declared prior to discussion on each item.
6.1 Cruise Eden 20th Anniversary........................................................................................................ 9
8.1 Planning Proposal for Rural Residential Rezoning at Mount Darragh Road, Lochiel......... 11
8.2 Funding request for 'Building an Energy Transitions Roadmap' project Regional Circularity Cooperative................................................................................................................................. 48
8.3 Updated adopted fees and charges for the sale of recycled brick and concrete aggregate 54
9.1 Request For Quotation (RFQ) 2425-111 Merimbula Ford Park Pavilion Design Consultancy......... 59
9.2 Request for Tender (RFT) 2425-027 West Kameruka Road Disaster Recovery Funding Arrangements (DRFA) Restoration Works............................................................................. 66
9.3 Request for Tender (RFT) 2425-108 George Brown Pavilion Upgrade update................... 71
9.4 Draft Recreation Strategy Exhibition.......................................................................................... 75
9.5 Request to Waive Section 64 developer contributions for the Eden Men's Shed development 129
9.6 Reporting of minutes for committees with delegated authority and advisory committees 132
10.1 Refer Financial Statements for Audit....................................................................................... 155
10.2 Related Party Returns and Annual Disclosures by Councillors and Designated Persons 2024/2025..................................................................................................................................................... 168
10.3 Code of Meeting Practice........................................................................................................... 174
10.4 For Adoption Policy 3.08 Management of Asbestos and Silica - Amendments following submission..................................................................................................................................................... 238
10.5 Certificate of Investment August 2025.................................................................................... 256
10.6 Certificate of Investment September 2025............................................................................. 262
11.1 Appointment of delegated authority to Bega Valley Awards Committee......................... 269
14.1 Secondary dwellings.................................................................................................................... 280
15.1 Cr Daly - Shellharbour Council Local Environment Plan amendments............................... 285
15.2 Cr O'Neil - Draft submission into rural housing and secondary dwelling reform............. 289
16.1 Cr Nadin - Merimbula CBD planning works............................................................................. 291
16.2 Cr Mudaliar - Eden netball courts............................................................................................. 293
Representations by members of the public regarding closure of part of meeting
Adjournment Into Closed Session, exclusion of the media and public........................... 300
|
Council |
15 October 2025 |
Mayoral Minutes
15 October 2025
6.1 Cruise Eden 20th Anniversary............................................................................... 9
|
Item 6.1 |
6.1. Cruise Eden 20th Anniversary
Cr Russell Fitzpatrick
Recommendation
That Council congratulate and thank Cruise Eden staff, volunteers and the wider Eden community for 20 years of successful cruise visitation to the Sapphire Coast.
Background
Eden will celebrate the 20th anniversary of cruise visitation on 7 November 2025. Over two decades, cruise visitation has grown significantly, bringing significant economic benefits to the region, despite several challenges during Black Summer and COVID-19. The Cruise Eden project has been driven by extensive community and volunteer efforts, supported by investment from all levels of government. This report recognises those achievements and notes Council’s support for the 20th anniversary celebration.
The Cruise Eden project has been a collaborative effort driven by a passionate community with a vision, led by several dynamic individuals and supported by all levels of government.
The Cruise Eden brand is owned and managed by Eden Tourism Inc. (Eden Tourism), a not-for-profit organisation with a volunteer board. Eden Tourism also manages the Eden Visitor Information Centre. Over the last two decades, Council has played various roles in supporting and promoting cruise visitation. Council recently renewed a Memorandum of Understanding with Eden Tourism and the Port Authority of NSW and provides modest funding to Eden Tourism to enable the employment of a Cruise Coordinator.
The first cruise ship visited Eden on 7 November 2005; the Pacific Princess berthed at the Navy Wharf on the southern side of Twofold Bay, supported by volunteer Cruise Eden Welcome Ambassadors in red shirts. This volunteer effort (and uniform) has continued with vigour ever since.
Between 2005 and 2019, there were 79 cruise visits to Eden. Vessels anchored in Twofold Bay, with passengers tendered to shore.
The Eden Breakwater Wharf Extension, approved to berth vessels up to 325m, was completed in August 2019, with $44m in funding from all levels of government.
Thirty-three ships were booked to visit in the 2019-2020 season; however, 4 visits were cancelled due to bushfires and 11 cancelled due to COVID-19.
COVID-19 impacted the following season, with no ships visiting in 2021-2022.
In 2021 the Eden Welcome Centre opened, providing a portside home for the Eden Visitor Information Centre run by Eden Tourism Inc, and a first port of call for disembarking cruise passengers.
To date, Eden has welcomed 210 cruise ship visits, bringing hundreds of thousands of visitors to the Sapphire Coast and tens of millions of dollars into our economy.
The 2025-2026 season commences tomorrow, with the Silver Nova scheduled to arrive at 8:00am.
Nil
|
Council |
15 October 2025 |
Staff Reports – Community, Environment and Planning
15 October 2025
8.1 Planning Proposal for Rural Residential Rezoning at Mount Darragh Road, Lochiel 11
8.2 Funding request for 'Building an Energy Transitions Roadmap' project Regional Circularity Cooperative......................................................................................................... 48
8.3 Updated adopted fees and charges for the sale of recycled brick and concrete aggregate............................................................................................................................. 54
|
Item 8.1 |
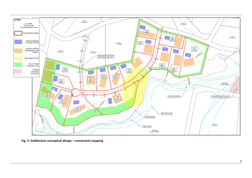
8.1. Planning Proposal for Rural Residential Rezoning at Mount Darragh Road, Lochiel
This report seeks a Council resolution to submit a planning proposal to the Department of Planning, Housing and Infrastructure which seeks to rezone and amend the minimum lot size of a site on Mount Darragh Road, Lochiel.
Director Community Environment and Planning
1. That Council resolve to support the planning proposal to rezone and amend the minimum lot size of the site at Mt Darragh Road (Lots 16, 17, 19 and 23 DP 1292533).
2 That Council endorse submission of the planning proposal (Attachment 1) and supporting information to the Department of Planning, Housing and Infrastructure requesting a Gateway Determination under Section 3.34 of the Environmental Planning and Assessment Act 1979.
3. That following Gateway Determination, the planning proposal be placed on public exhibition.
4. That Council endorse, subject to the conditions of the Gateway Determination and providing no substantial changes to the planning proposal are required and no objections are received during exhibition, to progress the planning proposal to finalisation and gazettal without a further report to Council.
Executive Summary
The purpose of this report is to seek Council’s approval to lodge a planning proposal to rezone and amend the minimum lot size of a site at Mt Darragh Road (Lots 16, 17, 19 and 23 DP 1292533) with the NSW Department of Planning, Housing and Infrastructure. If approved, the planning proposal could enable approval of sixteen additional rural residential lots through a future development application. The planning proposal is consistent with the Bega Valley Shire Rural Residential Strategy 2020.
Background
Lots 16, 17, 19 and 23 DP 1292533, at Mount Darragh Road Lochiel, are located approximately 7.5 kilometres west of South Pambula (see Map 1 below). The land is currently zoned a combination of RU2 Rural Landscape and C4 Environmental Living under Bega Valley Local Environmental Plan 2013 (BVLEP 2013) with minimum lot sizes of 120ha and 2ha varying across the site.
Council’s Rural Residential Strategy 2020 provides strategic direction for the future growth and management of rural residential development. The site is identified in the strategy as being potentially suitable for rural residential development.
The owner of the land has submitted a planning proposal that seeks to amend BVLEP 2013 to enable a sixteen-lot rural residential subdivision and regularise zone and lot size boundaries with an existing subdivision adjacent to lot 23 DP 1292533. The following amendments to BVLEP 2013 are proposed:
1) Enable a 16-lot rural residential subdivision on part of Lot 23 DP 1292533 by:
· rezoning a section of RU2 Rural Landscape with a 120ha lot size to C4 Environmental Living with a 1 ha lot size
· changing the minimum lot size of a small section of C4 Environmental Living zone from 2ha to 1 ha
· rezoning a section of C4 Environmental Living with a 2ha lot size to RU2 Rural Landscape with a 120ha lot size.
2) Align zones and lot sizes with existing property boundaries on parts of Lot 16, 17 and 19 DP 1292533 by:
· rezoning the parts of the lots zoned RU2 Rural Landscape with a 120ha lot size to C4 Environmental Living with a 2ha lot size.
Council officers have assessed the planning proposal and concluded that the proposal has both strategic and site-specific merit according to the criteria outlined in the NSW Local Environmental Plan Making Guidelines (August 2023).
Map 1: Location of proposal

Assessment of Planning Proposal
STRATEGIC MERIT ASSESSMENT CRITERIA
Does the proposal give effect to the relevant regional plan?
The planning proposal is consistent with the South East and Tablelands Regional Plan 2036 direction 28 to ‘Manage rural lifestyles’. It is also consistent with the draft South East and Tablelands Regional Plan 2041 strategy 20.1 to ‘Enable new rural residential development only where it has been identified in a local strategic plan, prepared by Council and endorsed by the department.’
The planning proposal is consistent with Council’s Rural Residential Strategy 2020 as a site outlined in the Pambula Catchment Area 3 as suitable for rural residential development.
Does the proposal demonstrate consistency with the relevant Local Strategic Planning Statement (LSPS)?
The proposal is consistent with the future direction of the LSPS planning priority 11 for housing to ‘Protect good quality agricultural land and areas of high scenic and environmental value by rezoning land for urban residential growth in areas identified in the Residential Land Strategy and support rural residential development that aligns with the Rural Residential Strategy 2020.’
Does the proposal respond to a change in circumstances that has not been recognised by the existing planning framework?
The planning proposal does not respond to a change in circumstances that has not been recognised by the existing planning framework.
SITE-SPECIFIC MERIT ASSESSMENT CRITERIA
Does the proposal give regard and assess impacts to the natural environment on the site to which the proposal relates and other affected land (including known significant environmental areas, resources or hazards)?
Reports regarding land contamination, land use conflict, traffic impact, archaeology, cultural heritage, bushfire, onsite sewer management and flood impact risk accompany the planning proposal. These supporting documents demonstrate that the proposed amendments to BVLEP 2013, to enable the development of sixteen rural residential lots, is appropriate on the subject land. It is considered that the proposal is unlikely to have unacceptable adverse impacts on the natural environment of the site or other affected land.
Does the proposal give regard and assess impacts to services and infrastructure that are or will be available to meet the demands arising from the proposal and any proposed financial arrangements for infrastructure provision?
It is anticipated that the subdivision that is likely to result from the planning proposal will require approximately 600m of road constructed to a two-lane sealed standard. Details of road construction requirements will be determined through the subdivision approval process and any costs associated with construction will be borne by the proponent. Once finished, the new road would be maintained as part of Council’s road network. The land is currently serviced with electricity and telecommunications. The proposed lots will not be connected to Council’s reticulated sewer or water services. Given the small scale of the proposed subdivision that may result from the planning proposal, it is not envisaged that the proposal will have any substantive impact on existing social or economic infrastructure such as schools, hospitals or existing retail centres.
Options
Options available to Council are to:
1. Resolve to support the planning proposal and forward it to the Department of Planning, Housing, and Infrastructure for Gateway Determination. This is the recommended option.
2. Not support the planning proposal.
Community and Stakeholder Engagement
Engagement undertaken
Pre-lodgement consultation has been undertaken with various Council officers in addition to Transport for NSW, Heritage NSW, NSW Rural Fire Service, NSW Department of Primary Industries - Agriculture and NSW Department of Climate Change, Energy, the Environment and Water.
Engagement planned
If the planning proposal receives Gateway approval, community consultation will be consistent with the requirements of the Bega Valley Shire Community Engagement Strategy, being a minimum exhibition timeframe of 28 days, or as specified by the Gateway Determination. Public exhibition of the planning proposal will include notification on Council’s website and in writing to adjoining landowners.
Should agency or community feedback to the planning proposal be received that warrant substantial changes to the planning proposal, a further report will be prepared for Council outlining the submissions received and the changes to the planning proposal recommended in response to those submissions prior to resolving whether to proceed with amending BVLEP 2013.
If no objections to the planning proposal are received and no substantial changes are required to the planning proposal, it is recommended that Council resolve to authorise staff to proceed to finalise the proposed amendment to the BVLEP 2013.
Financial and Resource Considerations
The planning proposal has been prepared by the applicant and the applicable fee of $18,575.07 has been received in accordance with Council’s adopted Fees and Charges 2025/26. Any additional costs incurred for advertising of the planning proposal will be met by the applicant.
Legal /Policy
The planning proposal has been prepared in accordance with section 3.33 of the Environmental Planning and Assessment Act 1979 and the Local Environmental Plan Making Guidelines (August 2023).
Impacts on Strategic/Operational/Asset Management Plan/Risk
Strategic Alignment
The planning proposal is consistent with the South East and Tablelands Regional Plan 2036, the Draft South East and Tablelands Regional Plan 2041, the Bega Valley Community Strategic Plan 2040, the Bega Valley Shire Local Strategic Planning Statement, and Council’s Rural Residential Strategy 2020.
Environment and Climate Change
The planning proposal supports future rural residential growth while having regard to environmental and climate change considerations.
Economic
The planning proposal supports provision of additional rural residential opportunities to supplement the options available in the market. However, it will impact Council’s future road maintenance budget through extension of the road network.
Risk
The planning proposal is consistent with the recommendations of the adopted Rural Residential Strategy 2020 and does not introduce any new risks to Council.
Social / Cultural
The planning proposal supports provision of additional rural residential opportunities to meet the needs of the community for provision of housing.
Attachments
1⇩. Planning Proposal (September 2025)
|
Item 8.2 |
8.2. Funding request for 'Building an Energy Transitions Roadmap' project Regional Circularity Cooperative
The Regional Circularity Cooperative, in collaboration with Charles Sturt University and CSIRO, has requested financial support from Bega Valley Shire Council for the proposed ‘Building an Energy Transitions Roadmap for the Bega Valley’ project, through the Reliable and Affordable Clean Energy for 2030 Cooperative Research Centres funding opportunity.
Director Community Environment and Planning
That Council provides a funding contribution of $15,000, split over two consecutive financial years, to the Regional Circularity Cooperative to support the Building an Energy Transitions Roadmap for the Bega Valley project, subject to the Cooperative’s grant application being successful.
Executive Summary
The Regional Circularity Cooperative (RCC), in collaboration with Charles Sturt University (CSU) and CSIRO, has requested financial support for the proposed ‘Building an Energy Transitions Roadmap for the Bega Valley’ project, through the Race to 2030 Reliable and Affordable Clean Energy for 2030 Cooperative Research Centres funding opportunity.
The project aligns with Council’s Climate Resilience Strategy and Clean Energy Plan and provides an opportunity for Council to contribute to clean energy leadership across the shire more broadly.
If the RCC’s grant application is successful, staff will provide in-kind support to the project and are seeking Council approval to provide a total financial contribution of $15,000 paid over two financial years. Funding is proposed to be committed from Council’s annual energy efficiency and renewables budget allocation funded through the Environment-Levy (E-Levy). Due to the inconsistent and opportunistic nature of grant funding opportunities for renewables energy and resilience initiatives, staff reserve a portion of this annual funding allocation should these funding opportunities arise. As such the support of this request will not compromise any proposed or planned capital works, maintenance or other renewable energy related projects.
Background
The RCC’s stated aim is to make the Bega Valley one of the world’s most circular economies; building on what is already great about the region, whilst addressing the varied and interconnected challenges facing it. An important foundation to any circular economy is how it sources and utilises its energy, with renewable energy lying at the heart of the vision to create a circular Bega Valley.
The CSU and the CSIRO, in collaboration with the RCC, are applying for funding through the Race to 2030 Reliable and Affordable Clean Energy for 2030 Cooperative Research Centres (CRC). An important component to the success of this project is being able to demonstrate to the funding body a clear commitment from key stakeholders in the Bega Valley including local government.
Other stakeholders that have committed to providing funding towards the project should it be successful in obtaining grant funding include the Bega Group, Essential Energy, the Regional Circularity Cooperative, Charles Sturt University and CSIRO.
The project proposes three key activities and outcomes:
1 Work with the community to co-design a local roadmap for renewable energy for long-term regional resilience. This will help enhance collaboration around regional energy planning, align interests, and enable long-term cooperation for shared energy infrastructure, community-scale renewables, and a just transition.
2 Through this engagement process, create an agreed situational understanding of the complexity of energy and circularity transition dynamics in the Bega Valley. This will identify elements that influence each other in predictable and unpredictable ways; essentially the risks and trade-offs of potential pathways to 100% renewables.
3 Integrate insights from deep community engagement and previous data-led feasibility studies into a flexible model that can be updated with new ideas, technologies, and local priorities as things change and help the community update their energy plans when needed.
A more detailed summary of the proposal has been provided at Attachment 1.
Council has provided an initial letter of support for the project committing in-kind staff contributions, with a note that any financial contributions are pending approval by Councillors.
Staff have reviewed the proposal and its stated outcomes and see strong alignment to actions identified in the Council’s Climate Resilience Strategy and Clean Energy Plan.
Staff recommend supporting the project and funding the contribution request to the value of $15,000, split over two financial years.
Options
Options available to Council include:
1. Agree to fully fund the request by providing $15,000 from the E-Levy (split over two financial years) towards the project, if the RCC’s grant application is successful. This is the recommended option.
2. Agree to partially fund the request. This would look less attractive to the funding body and may jeopardise the success of the project.
3. Agree not to fund the request, noting in-kind staff contributions will still be provided. This is likely to have negative impacts on the success of the grant application and the project itself, and is not recommended.
Community and Stakeholder Engagement
Engagement undertaken
Extensive consultation was undertaken with the community during the development of the Climate Resilience Strategy and the related energy security actions, which was exhibited and endorsed by Council in 2020.
Discussions have been undertaken between Council staff and key stakeholders including CSU, CSIRO and RCC on the goals and objectives for this particular project, as well as how Council’s contribution could be most effective.
Engagement planned
No specific engagement is planned by Council in relation to this funding request. The project proposal by the RCC recognises the extensive amount of work already undertaken by community groups in the Bega Valley and the project will include further engagement with these established groups to guide project outcomes. Bega Valley Shire Council staff will continue to be part of that engagement process.
The project will also include extensive engagement with key stakeholders such as government agencies, academia and industry.
Financial and Resource Considerations
Sufficient funds are available through Council’s energy efficiency and renewables annual budget allocation funded through the E-Levy.
|
Item |
$ Excl GST |
|
Expenditure Detail |
|
|
Council contribution to ‘Building an Energy Transitions Roadmap for the Bega Valley’ FY 25/26 |
$7,500 |
|
Council contribution to ‘Building an Energy Transitions Roadmap for the Bega Valley’ FY 26/27 |
$7,500 |
|
Total Expenditure |
$15,000 |
Legal /Policy
There are no direct legal implications associated with this proposal. The proposal is consistent with Council’s strategic objectives to reduce energy costs and greenhouse gas emissions across the shire.
Impacts on Strategic/Operational/Asset Management Plan/Risk
Strategic Alignment
The proposal aligns with the Clean Energy Plan 2019 and Climate Resilience Strategy 2020, as well as the Community Strategic Plan 2042 (2025 Revision) strategic objective ‘We adapt to and mitigate the effects of climate change’ and the following strategies:
· C.5 Promote renewable energy adoption
· C.6 Develop climate-resilient infrastructure and improve energy efficiency in existing buildings and assets
· C.7 Support community and industry led climate adaptation programs
The proposal is consistent with Council’s strategic objectives to reduce energy costs and greenhouse gas emissions across the shire.
Environment and Climate Change
The proposal supports Council’s adopted position to reduce greenhouse gas emissions across the shire in accordance with the adopted Clean Energy Plan 2019 and Climate Resilience Strategy 2020 and increase its energy security.
Economic
The proposal does not have a material impact on the economy of the Bega Valley Shire in the short term however the proposal could have positive economic benefits which flow from cheaper, more reliable energy sources in the medium to long term.
Risk
There is a long-term risk there will be no tangible community or economic impact from this proposal if findings from the project are not acted upon. Council staff will help ensure this risk is mitigated by participating and collaborating with partners to ensure outcomes delivered.
Noting Council’s adopted Climate Resilience Strategy and Clean Energy Plan, there is reputational risk if Council was not to be involved in this project.
Social / Cultural
Community feedback has consistently identified responding to climate change as an important consideration for Council and the community. Recent community workshops run by the RCC and other community events demonstrated the ongoing interest and desire to make meaningful change in the way we source our energy.
Attachments
1⇩. Building an Energy Transition Roadmap for the Bega Valley
|
15 October 2025 |
|
|
Item 8.2 - Attachment 1 |
Building an Energy Transition Roadmap for the Bega Valley |

|
Item 8.3 |
8.3. Updated adopted fees and charges for the sale of recycled brick and concrete aggregate
This report seeks to amend the approved fees and charges for the sale of Council’s waste-derived crushed aggregate products.
Director Community Environment and Planning
That Council:
1. Endorses the proposed revision to the 2025-26 Fees and Charges for public exhibition in accordance with Section 610F of the Local Government Act 1993 (NSW).
2. Places the revised Fees and Charges on public exhibition for a period of not less than 28 days, inviting public submissions during this time.
3. Notes that if no submissions are received during the exhibition period, the revised Fees and Charges will be deemed adopted and will take effect from 19 November 2025.
4. Notes a further report will be provided to Council for consideration should any submissions be received during the exhibition period.
Executive Summary
Waste Services is currently processing clean brick and concrete waste material to manufacture recovered aggregates with the intention of selling the recovered aggregates on to the public. Several different fractions (sizes) of aggregates are generated by the process.
As the smaller fractions typically have less value, approval is sought to amend the approved fees and charges to reflect the actual value of the different fractions and encourage the use of this material within the community. The proposed prices have been based on local and regional equivalent products.
Background
Council’s Waste Strategy 2025–2035: Resources, Not Waste (the Strategy), adopted by Council in April 2025, outlines a vision to “… provide waste minimisation and resource recovery opportunities to the community and advocate for circular and local solutions over disposal.”
One such opportunity is the production of recovered aggregates from clean waste brick and concrete material.
Currently, clean waste brick and concrete material is accepted and stockpiled at the Eden Waste and Resource Recovery Centre, where it is crushed and screened to produce recovered aggregates. These aggregates can substitute for crushed rock and gravel in certain construction applications.
Reprocessing clean brick and concrete waste conserves landfill airspace at the Central Waste Facility and enables the recovery of a useful resource.
The production of recovered aggregates is regulated by the NSW EPA under a Resource Recovery Order and Exemption (RROE), which mandates:
· Testing to ensure fitness for reuse
· Record-keeping and administrative compliance
· Usage limitations
To date, Council has only used recovered aggregates internally for wet weather access road construction at the Central Waste Facility. Council now seeks to make this material available to the local community.
Council adopted the 2025-26 Fees and Charges at the 23 June 2025 meeting and lists the sale price of recovered aggregates at $26 per tonne. By comparison, locally available virgin, quarried crushed rock and stone is available for $24 per tonne.
While recovered aggregates offer environmental benefits, they have some limitations:
· Potential for residual contaminants (e.g. steel, glass, asbestos), despite testing
· Usage restrictions under the RROE not applicable to virgin materials
Council has not previously sold recovered aggregates and is keen to encourage community uptake. Updated sale prices that reflect the differing value of the different fractions will improve competitiveness and promote resource recovery.
It is proposed to delete the current charge of $26 per tonne for the sale of crushed aggregate recovered aggregates and replace with the following:
|
Name |
Year 25/26 Fee (incl. GST) |
Unit |
GST |
|
Sale of recovered crushed aggregate – Select Fill (Eden Only) |
$10 |
Per tonne |
Y |
|
Sale of recovered crushed aggregate – Road Base/sub-base (Eden only) |
$10 |
Per tonne |
Y |
|
Sale of recovered crushed aggregate - 25mm (Eden only) |
$20 |
Per tonne |
Y |
|
Sale of recovered crushed aggregate - 40mm (Eden only) |
$20 |
Per tonne |
Y |
Options
Option 1: Amend the fees as outlined in this report to make recovered aggregates cost competitive with competing materials, thereby encouraging their use in local construction projects and diversion from landfill. This is the recommended option.
Option 2: Not amend the fees and charges. This option is not recommended as it will act as a barrier to the use of recovered aggregate materials and may increase material going to landfill.
Community and Stakeholder Engagement
This proposal has low community scale and low community impact. Under the IAP2 framework Council is responsible to inform the public of the proposal. However, as a fee and charge of Council, there is a requirement to inform and consult, taking relevant feedback.
Engagement undertaken
Council previously exhibited the 2025-26 Fees and Charges for 28 days prior to adoption.
In June to July 2025, expressions of interest were sought to seek innovative proposals for the management of clean brick and concrete waste material in the Bega Valley, however, none of the submissions received were deemed suitable to proceed to a different model of operations.
Engagement planned
Council will exhibit the revised 2025-26 Fees and Charges for 28 days. Should no submissions be received regarding the proposed amendment, the revised 2025-26 Fees and Charges will be adopted at the conclusion of the 28 day period on 19 November 2025. Should any submissions be received during the exhibition period a further report will be provided to Councillors for consideration.
Financial and Resource Considerations
Adoption of the proposed new fees and charges will support the use of recovered aggregate within the local community and divert this material from landfill, extending the useful life of the operational landfill cell at the Central Waste Facility.
Funding the operation is already adopted in Council’s long term financial plan. Sale fees and charges offset the operational costs of the activity. Council also charges $50 per cubic meter for the disposal of brick and concrete, which further offset the costs of the activity.
There are no capital implications related to this proposal.
Financial Option Impacts | Life Cycle Costing
|
Ongoing Financial Impacts |
$ Excl GST |
|
Annual maintenance and operational costs |
$82,500 (based on FY24/25 actuals) |
|
User charges (annual income) – Sale of aggregate |
Estimated $43,600 |
|
User charges (annual income) – Disposal of waste |
Estimated $75,750 |
Legal /Policy
The resource recovery activity is aligned with NSW State Government Waste Strategies. The operation is compliant with the RROE for waste brick and concrete published by the NSW Environmental Protection Authority. Additionally, sale of the material is covered under Council’s product liability insurance.
There are no legal or policy implications in updating fees and charges.
Impacts on Strategic/Operational/Asset Management Plan/Risk
Strategic Alignment
Council’s Waste Strategy 2025–2035: Resources, Not Waste, adopted by Council in April 2025, outlines a vision to “… provide waste minimisation and resource recovery opportunities to the community and advocate for circular and local solutions over disposal.”
Adjusting the approved fees and charges as proposed will encourage and support the use of recovered aggregates by the community and divert this useful resource from landfill.
Environment and Climate Change
Adjusting the approved fees and charges as proposed will encourage and support the use of recovered aggregates by the community and divert this useful resource from landfill. Use of recovered aggregates avoids the use of virgin rock and stone materials and aligns with Council’s Waste Strategy 2025–2035: Resources, Not Waste.
Economic
Adoption of the recommendations of this report will encourage and support the use of recovered aggregates within the community and divert this useful resource from landfill.
Risk
If Council does not adopt the proposed fee changes there is an increased risk that recovered aggregates may not be beneficially reused within the local community and may need to be disposed of via landfilling.
Social / Cultural
Encouraging the reuse of waste materials in the local community builds on Council’s social licence to effectively operate waste services and ensure that impacts on the environment are minimised.
Attachments
Nil
|
Council |
15 October 2025 |
Staff Reports – Infrastructure
15 October 2025
9.1 Request For Quotation (RFQ) 2425-111 Merimbula Ford Park Pavilion Design Consultancy............................................................................................................................. 59
9.2 Request for Tender (RFT) 2425-027 West Kameruka Road Disaster Recovery Funding Arrangements (DRFA) Restoration Works.......................................................... 66
9.3 Request for Tender (RFT) 2425-108 George Brown Pavilion Upgrade update... 71
9.4 Draft Recreation Strategy Exhibition................................................................... 75
9.5 Request to Waive Section 64 developer contributions for the Eden Men's Shed development..................................................................................................... 129
9.6 Reporting of minutes for committees with delegated authority and advisory committees........................................................................................................................... 132
|
Item 9.1 |
9.1. Request For Quotation (RFQ) 2425-111 Merimbula Ford Park Pavilion Design Consultancy
This report provides an overview of the public tender process of Request for Quotation (RFQ) 2425-111 Merimbula Ford Park Pavilion Design Consultancy and makes a recommendation for Council’s consideration.
Director Infrastructure
1. That council accept the recommendations outlined in the confidential memo.
2. That Council shortlist <xxx> for the Stage 2 works described in Tender RFQ 2425-111 Merimbula Ford Park Pavilion Design Consultancy.
3. That the shortlisted firms each be engaged for a fee of $6,000 plus GST to prepare and present design concepts for the Ford Park Pavilion project.
4. That all tenderers are advised of the outcome of the first stage of tender response shortlisting.
6. That the Tender Evaluation Panel assess the concept designs and consider the feedback responses from the PWG organisations and recommend a preferred architect for this project.
7. That authority be delegated to the Chief Executive Officer to engage the preferred architect and execute all necessary documentation in relation to RFQ 2425-111 Merimbula Ford Park Pavilion Design Consultancy.
8. That the two unsuccessful preferred tenderers are advised of the outcome and thanked for their interest, efforts, and contribution to the project.
9. That any variations and amendments be managed under the existing Council financial delegations.
Executive Summary
The purpose of bringing this report to Council is to seek Council’s endorsement of the recommendations as outlined in the attached confidential memo and inform Council on project funding and tender methodology.
The Merimbula Basketball and Netball Court Pavilion Renewal and Upgrade project is listed in the BVSC Delivery Plan 2025 – 2029 and the Bega Valley Shire Funding Our Future: July 2024.
The design procurement for the project was issued to market in July 2025. Throughout August and September tender evaluation was undertaken. The Tender Evaluation Pannel (TEP) has shortlisted three preferred tenderers to progress Stage 2 of the tender, which is to create and present concept designs to the project key stakeholder groups (Project Working Group (PWG)). From these presentations, the concepts will be evaluated on their demonstrated design intent, design solutions including innovation, cost effectiveness and maintenance requirements. The concepts and presentations will be assessed and a recommendation for a preferred architect for the project will be made.
This report seeks Council’s endorsement of the three shortlisted tenders and delegated authority for the Chief Executive Officer to execute all necessary documentation to progress the project, with the preferred contractor. All tenderers will be formally advised of Council’s decision.
Background
The Merimbula Basketball and Netball Court – Pavilion Renewal and Upgrade project is as a priority infrastructure project for council. In late 2024 to mid-2025 stakeholder engagement was undertaken which resulted in an approved stakeholder design brief created for design tender purposes. Tenders were advertised on 02 July 2025 and closed on 31 July 2025.The tender drew strong interest with 237 downloads, 43 attendees at a non-mandatory meeting and 23 tender submissions received. A budget to progress with project development and design is included in the FY26 budget allocations.
During the 2025 federal election the Labor Party committed $2,500,000 to the project. Council has been invited to apply for the funding through the Australian Governments ‘Major and Local Community Infrastructure Program’ (MLCIP). The application is due to be submitted on 1 December 2025. There is very low risk of the funding not being confirmed.
The MLCIP grant program requires the project to commence in the 2025-26FY (design), with projects to be completed by 2029. The BVSC project team has programmed the detail design, construction procurement, construction and project completion within the grant program milestone dates.
Design Competition Approach
In order to stimulate creative competition for this project, this RFQ tender was set up as a competition staged approach with a project design and construction delivery outcome. The tender evaluation process includes the selection of three Architects each paid $6,000 (plus GST) for their concept design and presentations. A similar RFQ competition tender approach was successfully used to deliver the Kiah & Wandella Halls recently completed by Bega Valley Shire Council. These concept designs are to be presented to the key stakeholder organisations forming the Project Working Group and representing organisation that will be utilising the new pavilion building.
The design competition approach for this type of project provides the following benefits:
· A Financial saving for the project due to the Architect being restricted to payment for a concept design in lieu of the client (BVSC) paying for a larger percentage-based project value.
· Allows the project team and stakeholders to review the design and identify any concerns or issues that may have been overlooked or missed during the earlier consultation phases.
· The project team gets to consider 3 sets of ideas from design professionals with real concepts providing design solutions for the project. This will be valuable information for use in progressing the final design and detail phases of the project.
· While two proposals will become redundant, some elements within them may be adapted into the final design, potentially adding value in terms of construction cost savings and/or functionality.
The shortlisted architectural firms will present their conceptual designs to the project stakeholder groups and the BVSC project team at presentations to held in the Merimbula Twyford Hall meeting room at a date to be set. The presentations will be made to PWG stakeholder representatives and to council officers on the tender evaluation panel. Councillors may wish to attend the presentations for their information but will not formally assess the submissions in order to conform to tender evaluation and procurement processes.
The architects will have one hour each to present their concept designs plus additional 30-minutes to respond to stakeholder questions. The stakeholders and TEP will evaluate the concepts on demonstrated design intent, design solutions including fitness for purpose, innovation, cost effectiveness and maintenance. Each stakeholder organisation will be given the opportunity to provide a single consolidated feedback response, scoring their preferences on the architects’ concept designs and providing comments.
Upon completion the assessment the TEP will recommend a preferred architect for the project to the Chief Executive Officer to execute all necessary documentation for engagement to progress Stage 3 of RFQ 2425-111 Merimbula Ford Park Pavilion Building Design, with an option to proceed to Stage 4.
Tender Process Overview
On 2 July 2025, Bega Valley Shire Council publicly tendered the Architectural Services for the design & documentation of the new Merimbula Ford Park Pavilion (RFQ 2425-111).
The tender sought qualified registered Architects to deliver the works under a lump sum contract, with evaluation based on both price (50%) and non-price criteria (50%), including:
· Proposed Methodology
· Recognition of local outcomes, demonstration of support for local business & Community Enterprise
· Experience completing similar contracts
· Schedule of Rates for Variations
· Additional design intent information
The RFQ drew a lot of interest with over 237 firms viewing and downloading the information. The RFQ closed on 31 July 2025. Council received twenty-three responses and completed an evaluation shortlisting three Architects. The RFQ includes staged delivery including.
· Stage 1 Tender Evaluation (Completed)
· Stage 2 engagement of three Architects to provide conceptual designs & a presentation.
· Stage 3 engage and award contract to successful concept design Architect to provide detailed design & construction documentation.
· Stage 4 Construction phase support.
The Tender Evaluation Panel (TEP) assessed submissions in accordance with the approved Tender Evaluation Plan. The outcomes of the assessment are included in the attached confidential memo.
Options
Option 1: Proceed with engaging the three shortlisted contractors as outlined in this report and progress to engaging the preferred tenderer following the evaluation process,
Advantages:
· Maintains project momentum and continuity.
· Opportunity to retain design intent while achieving cost savings.
· Builds on existing tender evaluation and due diligence.
· Allows for quicker resolution and contract execution.
This is the recommended approach as it presents the best outcome for council and will meet project deadlines and scoped requirements of the project funding deeds.
Option 2: Council resolve to engage one of the architects for this project on the basis of the selected tenders, without the shortlisting process
Advantages: Time, minor cost saving.
Disadvantage: Miss out on creative development of alternative concept designs.
Option 3: Council reject all current tenders and undertake a redesign or scope reduction of the project. A second procurement process would then need to be undertaken.
Advantages: There are no advantages
Disadvantages:
· Significant delays to project delivery due to redesign and re-tendering.
· Additional costs associated with redesign and procurement.
· Risk of similar pricing outcomes if market conditions remain unchanged.
· High likely hood the project would not be able to meet the requirements of the funding program.
· Loss of project momentum and community confidence.
This is not the recommended approach due to timeline risks and waste of resources.
Community and Stakeholder Engagement
Engagement undertaken
In late 2024 a stakeholder user group was formed to progress the user needs; functional requirements of the building and what spaces could be shared. This information was recorded into a detailed design brief and included in the tender to inform the tenderers what is required for the building design. The stakeholders included the following:
· Merimbula Basketball
· Merimbula Netball
· Sapphire Coast board riders
· Merimbula Sailboard Club
· Australian Lifeguard Services
Engagement planned
The next phase of stakeholder engagement will be concept review where the stakeholders are given presentations by the architects on their concepts and ideas.
Following on from the concept review and progression of the project the stakeholders will be kept up to date with progress through regular project updates and meetings as required. Consultation during the detail design for construction purposes will be involved to ensure their needs are being met. At the completion of construction, stakeholders will receive an induction to the building and its operations.
Financial and Resource Considerations
During the 2025 Federal Election the Labor Party committed $2,500,000 to the project. Council has been invited to apply for the funding through the Australian Government ‘Major and Local Community Infrastructure Program’ (MLCIP). The application is due to be submitted by 1 December 2025. There is very low risk of the funding not being confirmed.
The current endorsed 2026 FY budget includes $90,000 to continue to work through design services procurement and begin work on the project design. This has been retained in the project contingency and will be assessed once the grant funding is confirmed.
The Guidelines for the MLCIP grant funding include a measure of uncertainty about Council ‘s eligibility to receive funding for works committed before the execution of the formal funding agreement.
The $90,000 in the adopted 2026 FY budget is sufficient to cover the engagement of the three shortlisted architects ($18,000 excl GST) for initial concept design and presentations, however this amount is less than the estimated contract amount for the Design and Documentation by the selected architect.
The adopted Capital Program in the 2025-29 Delivery Plan identifies funding in FY2027 ($1,066,050) and FY2028 ($1,647,047 identified as grant funded). If it should arise that the design and documentation costs are not met from the MLCIP grant, the shortfall could be addressed by bringing forward funds from 2027 FY in a future budget review.
The contract amount for the design and documentation will not be determined until the outcome of the tender evaluation is complete and a preferred architect is identified. This is expected to be in December 2025. On the basis that the funding for the design and documentation will either be funded from the grant or from the approved future capital budget, it is in order for the CEO to execute the contract to engage the selected architect.
|
Item |
$ Excl GST |
|
Expenditure Detail |
|
|
Building Cost |
$ 1,870,000 |
|
Landscaping and other External works |
$ 150,000 |
|
Design & Documentation |
$ 270,000 |
|
Project Management Fees |
$ 100,000 |
|
Contingency |
$ 200,000 |
|
Total Expenditure |
$2,590,000 (sum of all costs) |
|
|
|
|
Source of Funds |
|
|
Federal Government - Major & Local Community Infrastructure Program. (Election announcement. Deed to be finalised) |
$ 2,500,000 |
|
BVSC Recreation SV 2025-26FY |
$ 90,000 |
|
Total income available |
*$ 2,590,000= total project cost |
|
|
|
|
Total Project Capital Cost |
$ 2,590,000 |
|
Total Available Project Funding |
$ 2,590,000 |
|
Project Funding Shortfall |
$0 |
Financial Option Impacts | Life Cycle Costing
|
Ongoing Financial Impacts |
$ Excl GST |
|
Capital Investment | Renewal, Upgrade, New |
$1,870,000 |
|
Annual maintenance and operational costs |
$7,000 |
|
Depreciation costs. Roof 30%, Structure 50%, Fit-out 20% |
$35,000p.a. |
|
User charges (annual income) |
$5,000 |
Legal /Policy
The tender process was undertaken as a Request For Quotation (RFQ) on the basis that the expected costs would be less than $250K including GST in accordance with Section 55 of the Local Government Act 1993, part 7 of the Local Government (General) Regulation 2021 and Section 171 of the Local Government Regulations.
The upgrade is Exempt Development under NSW Legislation SEPP Division 12 Parks and other public reserves 2.73 Development permitted without consent (3) (vi) amenities for people using the reserve, including toilets and change rooms.
Impacts on Strategic/Operational/Asset Management Plan/Risk
Strategic Alignment
The Ford Park courts site is referenced as a campus of the Pambula Sporting complex in the Pambula Sporting Complex Master Plan.
The project is included in the BVSC 2026 Delivery Plan ‘Continue to develop ‘shovel ready’ documentation for priority capital projects- Ford Park Pavilion, Coastal Accessibility Round 2, local playground renewals program’
The project is included in the BVSC Funding Our Future July 2024 document.
Asset Management
The project will renew and improve the aging non-compliant pavilion and incorporate the renewal of the existing public amenities.
Environment and Climate Change
The site and building have been used as a recreation facility for many years. A Review of Environmental Factors will be completed and submitted to Council’s planning department for review.
The new building will be designed and constructed with low maintenance materials with long life spans. The building will be well insulated and include passive design for cross ventilation and light penetration to reduce energy consumption. Water saving fittings and low voltage light fittings will also be used to reduce demand placed on both the electricity and water and sewer networks.
Economic
The project will have the following economic benefits:
· Reduced Maintenance Costs: New building and finishes requiring lower long-term maintenance expenses to the building.
· Long-Term Financial Stability: The new building will extend the facility's lifespan, ensuring continuous use and expanding the user base to all genders.
Risk
The follow core risks have been identified and will be managed through the project:
· Reputational: Key stakeholder engagement has taken place since project inception and will continue through design and construction.
· Timeline: The timeframe in the funding deeds is considered manageable. Completion of the procurement process will see the timeframes remain on the current program.
· Financial: The tendered prices are within the current project budget. The construction budget has been considered against the recently completed construction costs of the Pambula Sports Pavilion. Value management can occur through negotiation prior to finalising a construction contract. Staff are confident this can be achieved while meeting key deliverables of the funding deeds.
Social / Cultural
The new Merimbula Ford Park Pavilion building will provide a safe and inviting space for all users in the local community. With female and male participation rates on the rise within Basketball & Netball clubs the improvements will provide a welcoming and inclusive facility for both clubs and also visiting clubs from the south coast.
Attachments
1. Confidential Memorandum to Councillors RFQ 2425-111 (Confidential - As this attachment contains commercial information of a confidential nature that would, if disclosed (i) prejudice the commercial position of the person who supplied it; or (ii) confer a commercial advantage on a competitor of the Council; or (iii) reveal a trade secret as per Section 10A(2)(d) of the Local Government Act 1993.
Although the above relates more explicitly to the discussion of closed business, it also forms part of the basis of justification as to why information relied upon in informing the public decisions made by Council are kept confidential. To consider this confidential material in open Council would be, on balance, contrary to the public interest (as defined in Section 14 of Government Information Public Access (GIPA) Act 2009) as it would potentially disclose private business information provided by tenderers in a confidential tender process and would also impact Council’s position in relation to its consideration, therefore impacting the tender process. This meets the requirements of Sect 10 D of the Local Government Act 1993 if Council were to close the meeting to discuss the details of individual tenderers.
|
Item 9.2 |
9.2. Request for Tender (RFT) 2425-027 West Kameruka Road Disaster Recovery Funding Arrangements (DRFA) Restoration Works
This report outlines the evaluation of (RFT) 2425-027 West Kameruka Road Armco DRFA Restoration Works and recommends awarding a contract to the preferred tenderer.
Director Infrastructure
1. That council accept the recommendations outlined in the confidential memo.
2. That Council accepts the tender from <xxxx> in relation to contract for the works described in Tender RFT 2425-027, in the amount of <$xxxx> (including GST), subject to variations and provisional sums.
3. That authority be delegated to the Chief Executive Officer to:
a. Execute all necessary documentation.
b Approve contract variations up to the available allocated budget
4. That all tenderers be advised of Council’s decision.
Executive Summary
The West Kameruka Road Armco Disaster Recovery Funding Arrangements (DRFA) Restoration Works aims to restore an existing dual metal arch Armco culvert to pre flood conditions following damage caused by multiple declared flood events. The project will be fully funded by the DRFA and will involve repairs to the concrete foundations, debris clearing and installation of scour protection. Completion of this project will improve the safety of West Kameruka Road and extend the life of this asset.
Council has consulted with key stakeholders and obtained a fully developed design for repairs of the structure. A tender process was then completed, and a preferred contractor identified via the evaluation process. This report seeks endorsement to award a contract to the preferred contractor and complete repairs as soon as possible.
Background
This damage is located at the Northern end of West Kameruka Road approximately 500m before the intersection with the Snowy Mountains Highway in the locality of Morans Crossing. The structure discussed in this report is a dual metal arch Armco culvert. Each arch is approximately 4m wide, 2m high and 50m long with concrete foundations and an unnamed waterway flowing through them.
Damage to this structure was first raised by the Disaster Recovery team on 28 February 2023 when it was observed that the culvert footings were undermined and cracked with debris restricting the flow of water through the culvert as a result of the October 2022 flood event. An initial engineering inspection report was completed by JSA Engineering Solutions recommending that a fully developed design is obtained covering debris removal from the structure and underpinning of the foundation to extend the life of the asset. Initial budget estimates were completed, and approval received from the funding body for the proposed scope of work on 24 October 2023.
The Bega Valley was then impacted by another two declared flood events in November 2023 and December 2023 which caused further damage to the structure. While Disaster Recovery continued to work on the recommendations of the previous engineering inspection consultation was undertaken with Transport for New South Wales (TfNSW) who administer the Disaster Recovery program. Although the further damage to the structure was relatively minor TfNSW were supportive that it would require an increase to the repair scope. As such a new damage was raised on 6 November 2024 and approved on 9 December 2024.
Consultation with Fisheries occurred in mid-2024 as the creek flowing through the culvert is classed as Key Fish Habitat (KFH). Fisheries requests were communicated to Stoddard Engineering who were engaged to complete a design for the repair of the structure. A complete design was received from Stoddard Engineering on 26 November 2024. A Review of Environmental Factors (REF) was then completed by Macrozamia to ensure the design could be constructed without causing unnecessary harm to the environment. The REF was completed on 18 February 2025 then reviewed/ determined by Bega Valley Shire Council’s environment team on 6 March 2025. A fisheries permit was then obtained on 10 April 2025.
After acquiring all required design, permits and approvals; scope documents were prepared before approaching the market via Vendor Panel.
The final scope of works includes:
· Implementation of safeguards as per REF including erosion and sediment controls
· Traffic management
· Construction of temporary access tracks
· Dewatering of the site via temporary coffer dam
· Clearing debris from the inlet and outlet
· Underpinning of exposed footings
· Pour inlet slab incorporating rock pools for fish passage
· Install rock scour protection around both upstream and downstream headwalls
· Remove rust from lower sections of culvert and apply bitumen paint/ grout to protect and fill voids.
· Rehabilitating the site including revegetation.
The request for tender was issued on 16 April 2025. A site briefing was held on 15 May 2025 onsite, with two vendors attending. At tender close on 28 May 2025, three submissions were received.
Information provided by tenderers within their tender submission, in particular price information, is ‘commercial in confidence’ and is included in the attached confidential memorandum
Options
1. Proceed with the recommended tenderer.
This option allows commencement of works to align with tender program which meets the DRFA funding deadline. Option 1 will repair the structure and extend its life long enough to assess other longer-term solutions. The associated pricing falls within the allocated budget provided by TfNSW. This is the preferred option.
2. Reject recommended tenderer.
This would increase the likelihood of extended delivery timelines which could result in failure of the culvert, unplanned road closure, missed deadlines, possible retraction of agreed funding and increased supply costs. This is not the preferred option.
Community and Stakeholder Engagement
Engagement undertaken
During design engagement has been undertaken with Fisheries, landowners on both sides of the culvert and TfNSW to ensure the design provides maximum benefit to all stakeholders.
Internal consultation was undertaken with BVSC staff in Works, Assets, Environment and Procurement.
An REF was completed which identified possible impacts on the community including noise, dust and traffic delays. The REF included recommendations on how to minimise these impacts. All safeguards provided will be implemented during construction.
Engagement planned
Neighbouring landowners will continue to be consulted with once a contractor is engaged through to completion of the project. A media alert will also be issued from the Council’s communications team notifying the community of the upcoming intermittent single lane closure, commencement date and duration of the work. Live traffic will also be kept up to date throughout the project.
Financial and Resource Considerations
This project will be full funded by the Disaster Recovery Funding Arrangements (DRFA).
|
Item |
$ Excl GST |
|
Expenditure Detail |
|
|
West Kameruka Road Armco DRFA Restoration Works – Lump Sum Contract Cost |
Refer Confidential Attachment |
|
West Kameruka Road Armco DRFA Restoration Works – Maximum Provisional Items |
Refer Confidential Attachment |
|
Total Expenditure |
|
|
Total Possible Contract Cost |
Refer Confidential Attachment |
|
Total income available |
|
|
DRFA Funding (TfNSW) |
Refer Confidential Attachment |
|
Total Project Capital Cost |
|
|
Committed and Spent to Date (Design, Fisheries, Traffic Management) |
Refer Confidential Attachment |
|
Total Possible Contract Cost |
Refer Confidential Attachment |
|
Total |
Refer Confidential Attachment |
|
Total Available Construction Funding |
Refer Confidential Attachment |
|
Project Funding Surplus/ Contingency |
Refer Confidential Attachment |
The ongoing life cycle costing impacts are negligible since the project is intended to restore the road to the prior service conditions.
Legal /Policy
The tender process conducted for RFT 2425-027 was undertaken in accordance with Section 55 of the Local Government Act 1993, part 7 of the Local Government (General) Regulation 2021 and Section 171 of the Local Government Regulations.
Impacts on Strategic/Operational/Asset Management Plan/Risk
Strategic Alignment
Completion of the works will achieve alignment with Council’s following strategic objectives:
Community Strategic Plan 2042- 2025 Revision: D.6 Our transport network makes it easy to move through and beyond the shire
Strategic Asset Management plan 2025-29: Asset Lifecycle Management, Asset Renewal and Upgrade
Environment and Climate Change
A Review of Environmental Factors (REF) was completed to help ensure that the work will be completed in an ecologically sustainable way. The REF concluded that it is unlikely that the proposed activity will have a significant impact on threatened species, populations, communities and their habitats. Any work that occurs on this site will be in accordance with the recommendations made within the REF.
Successful completion of this project will improve fish passage through this structure by incorporating pools within the inlet slabs creating slow moving areas for fish to rest when traversing the structure.
Revegetation of the site will also replace many failed seedlings previously planted in this area creating new habitat for fauna and stabilising the bank of the waterway to minimise future erosion.
Economic
Completion of this project will improve the safety and durability of West Kameruka Road and prolong the life of this asset. This project will also reduce the likelihood of culvert failure and subsequent road closures on West Kameruka Road.
Risk
Accepting this Tender will allow council to complete this work whilst DRFA funding is available. Delaying the project may result in the funding expiring on 30 June 2027 before the work is complete.
If this work doesn’t occur, then it is highly likely that the culvert will deteriorate further in future flood and storm events which will likely result in lengthy road closures.
The key risks associated with the delivery of this project are:
1. Site access: both the inlet and the outlet are located at the bottom of very steep banks with limited access for plant and equipment. The REF has identified access paths to both ends of the structure which will require tree removal, track construction and coordination with a neighbouring landowner.
2. Environmental Factors: The creek is identified as Key Fish Habitat and as such a fisheries permit will be in place for the duration of the work. Dewatering will be required to complete work in and around the culverts with the construction of a coffer dam which will need to be removed to restore fish passage at least once per week. A sediment basin will also need to be constructed downstream of the pump to minimise sediment discharge into the creek. Revegetation will be required to offset the trees removed during construction of the access tracks and to reinstate ground cover on the creek banks.
3. Safety: Construction will require staff to enter the culvert which although open at both ends, does class as a confined space due to the presence of water. The contractor will need to have appropriate qualifications and procedures in place to complete this portion of the work safely. The excavation and underpinning work will also need to be sequenced in such a way as to provide support to the damaged structure while repairs are being carried out to avoid further cracking and the possibility of collapse.
Social / Cultural
Restoration of the road to its intended operational conditions allows the communities using the road to access services in other service centres within the Shire such as Eden, Merimbula and Bega.
Attachments
1. RFT 2425-027 - Confidential Memorandum to Councillors (Confidential - As this attachment contains commercial information of a confidential nature that would, if disclosed (i) prejudice the commercial position of the person who supplied it; or (ii) confer a commercial advantage on a competitor of the Council; or (iii) reveal a trade secret and information that would, if disclosed, prejudice the maintenance of law as per Section 10A(2)(d) and (e) of the Local Government Act 1993.
Although the above relates more explicitly to the discussion of closed business, it also forms part of the basis of justification as to why information relied upon in informing the public decisions made by Council are kept confidential. To consider this confidential material in open Council would be, on balance, contrary to the public interest (as defined in Section 14 of Government Information Public Access (GIPA) Act 2009) as it would potentially disclose private business information provided by tenderers in a confidential tender process and would also impact Council’s position in relation to its consideration, therefore impacting the tender process. This meets the requirements of Sect 10 D of the Local Government Act 1993 if Council were to close the meeting to discuss the details of individual tenderers.
|
Item 9.3 |
9.3. Request for Tender (RFT) 2425-108 George Brown Pavilion Upgrade update
This report presents the outcome of the negotiation process for RFT 2425-108 George Brown Pavilion Upgrade.
Director Infrastructure
1. That Council accepts the recommendation as outlined in the attached confidential memorandum.
2. That the proposed budget adjustment be adopted.
Executive Summary
At the Council meeting held 23 July 2025, Council considered the report RFT 2425-108 George Brown Pavilion Upgrade and resolved to reject all tenders under clause 178 of the Local Government (General)Regulation 2021 and enter in negotiations with the preferred tenderer, with the intention to award a contract subject to variations and provisional sums.
Background
At the Council meeting held 23 July 2025, Council considered the report RFT 2425-108 George Brown Pavilion Upgrade and resolved:
1. That Council accepts the recommendations as outlined in the confidential memo.
2. That Council rejects all tenders under clause 178 of the Local Government (General)Regulation 2021 and enter in negotiations with the preferred tenderer, with the intention to award a contract subject to variations and provisional sums.
3. That authority is delegated to the Chief Executive Officer to execute all necessary documentation in relation to tender RFT 2425-108.
4. That variations and amendments be managed under the existing Council financial delegations.
5. That any project budget amendments be included in future quarterly budget reports.
6. That all tenderers be advised of Council’s decision.
Due to insufficient budget, negotiations were recommended to establish potential cost saving opportunities, specifically relating to the roofing components of the original scope of works.
Negotiations between Council and the preferred Tenderer identified three alternative options for the roof replacement. Following the preferred Tenderer submitting methodology and pricing proposals for these options, the clip lock Colorbond roof on existing roof footprint was identified as the most advantageous outcome for Council as it provides favourable whole of life cost outcomes, as well as flexibility to undertake future spectator shelter works. Further information on the negotiation process is set out in the attached confidential memorandum.
While the negotiation process did result in cost savings from the initial tendered pricing, none of the alternative options allowed for completion of the project within the current available budget.
Options
1. Council endorses the reallocation of funds from the identified alternative budget to the George Brown Pavilion Upgrade budget, ensuring sufficient funds for the successful completion of the negotiated roof scope (recommended).
This is the recommended approach as it will allow quicker progression of the contract for execution and therefore the commencement of works.
2. Council rejects the proposal for funds to be reallocated outside of the quarterly budget review process, with the adjustment request revisited as part of the next quarterly report to Council.
This option is not the preferred option as additional time delays may lead to significant delays in project delivery, leading to potential loss of momentum and community confidence.
Community and Stakeholder Engagement
Engagement was undertaken with the Eden Tigers Rugby League Football Club (ETRLFC) throughout the design process, which informed the design and therefore the scope of the works that has been determined.
Engagement undertaken
Meetings with the stakeholders, engineers and design consultants have been undertaken to determine the functional brief for the concept design as presented to councillors on the 16 April 2025, which council endorsed.
Engagement planned
Staff have continued to engage with the stakeholder group regarding the scope changes.
Financial and Resource Considerations
|
Item |
$ Excl GST |
|
Expenditure Detail |
|
|
Actual expenses to date |
Refer to attached confidential memo |
|
Construction and project costs |
Refer to attached confidential memo |
|
|
|
|
|
|
|
Source of Funds |
|
|
Council contribution (budgeted contribution to secure grant) |
$200,000 |
|
Investing in Our Communities Program Grant (Australian Govt) |
$250,000 |
|
Club Grants (Office of Liquor and Gaming Govt grant) |
$200,000 |
|
Eden Tigers RLFC Contribution |
$5000 |
|
Total income available |
* total income = total project cost |
|
|
$655,000 |
|
Total Project Capital Cost |
Refer to attached confidential memo |
|
Total Available Construction Funding |
Refer to attached confidential memo |
|
Project Funding Shortfall |
Refer to attached confidential memo |
Financial Option Impacts | Life Cycle Costing
|
Ongoing Financial Impacts |
$ Excl GST |
|
Capital Investment | Renewal and upgrade |
Refer to attached confidential memo |
|
Annual maintenance and operational costs |
$2,500 |
|
Depreciation costs |
$18,083 p.a. |
|
User charges (annual income) |
$2,225 |
Legal /Policy
The tender process was undertaken in accordance with Section 55 of the Local Government Act 1993, part 7 of the Local Government (General) Regulation 2021 and Section 171 of the Local Government Regulations.
The negotiation process was managed in accordance with part 7 of the Local Government (General) Regulation 2021 and the NSW Government Procurement Framework Guideline.
The upgrade is Exempt Development under NSW Legislation SEPP Division 12 Parks and other public reserves 2.73 Development permitted without consent (3) (vi) amenities for people using the reserve, including toilets and change rooms.
Impacts on Strategic/Operational/Asset Management Plan/Risk
Strategic Alignment
2025/26 Operational Plan: Plan, manage, maintain and construct boating infrastructure, sporting grounds and facilities, parks and gardens, playgrounds, skateparks, natural area assets and public amenities
2024/25 Operational Plan Progress with and deliver projects for Sports Infrastructure-George Brown Oval Female Friendly Facilities.
Environment and Climate Change
The site and building have been used as a recreation facility for many years. A Review of Environmental Factors has been completed and submitted to planning department for review.
As a part of the renovations the building will receive upgrades to plumbing infrastructure, showers, and internal lighting. It is expected this will have a positive impact on the demand placed on both the electricity and water and sewer networks
Economic
The project will have the following economic benefits:
Reduced Maintenance Costs: A durable roof will lower long-term maintenance expenses and further water damage to the facility.
Long-Term Financial Stability: Upgrades will extend the facility's lifespan, ensuring continuous use and expanding the user base to all genders.
Risk
Reputational: Key stakeholder engagement has taken place since project inception and will continue through design and construction.
Timeline: The timeframe in the funding deeds is considered manageable. Completion of the procurement process will see the timeframes remain on track at this stage.
Financial: The tendered prices were above the current project budget. A value management exercise has occurred through negotiation prior to finalising a contract. This has mitigated the financial risk for this project, subject the proposed reallocation funds. The reallocation of a relatively small amount of funds from the Bega Swimming Pool project will likely have minimal impact to that project.
Social / Cultural
The upgrade of the George Brown Oval Pavilion will provide a safe and inviting space for all users in the local community. With female participation rates on the rise within Rugby League and touch football clubs the improvements will provide a welcoming and inclusive facility for Eden Tigers RLFC but also visiting clubs from the south coast.
Attachments
1. RFT 2425-108 Confidential Memorandum - CEO award post negotiations (Confidential - As this attachment contains information that would, if disclosed, confer a commercial advantage on a person with whom the Council is conducting (or proposes to conduct) business and commercial information of a confidential nature that would, if disclosed (i) prejudice the commercial position of the person who supplied it; or (ii) confer a commercial advantage on a competitor of the Council; or (iii) reveal a trade secret as per Section 10A(2)(c) and (d) of the Local Government Act 1993.
Although the above relates more explicitly to the discussion of closed business, it also forms part of the basis of justification as to why information relied upon in informing the public decisions made by Council are kept confidential. To consider this confidential material in open Council would be, on balance, contrary to the public interest (as defined in Section 14 of Government Information Public Access (GIPA) Act 2009) as it would potentially disclose private business information provided by tenderers in a confidential tender process and would also impact Council’s position in relation to its consideration, therefore impacting the tender process. This meets the requirements of Sect 10 D of the Local Government Act 1993 if Council were to close the meeting to discuss the details of individual tenderers.
|
Item 9.4 |
9.4. Draft Recreation Strategy Exhibition
This report seeks Council endorsement to place the draft ‘RecCreate – A Strategy for Recreation in the Bega Valley Shire’ on public exhibition for a period of 21 days following the Council meeting.
Director Infrastructure
2. That a further report be presented to Council following the public exhibition period, detailing the outcomes of the exhibition and any recommended changes to the draft strategy.
Executive Summary
Bega Valley Shire Council manages a range of recreation assets across the shire. These include sporting facilities, playgrounds, skate parks, parklands, natural reserves, aquatic facilities, and maritime infrastructure.
Staff have drafted the attached document ‘RecCreate - A Strategy for Recreation in the Bega Valley Shire.’ (The Strategy) The Strategy aligns with Council’s Community Strategic Plan objectives, particularly in managing and improving recreational infrastructure and services. It incorporates broader industry trends, demographic data, and asset management insights to ensure a balanced and sustainable approach to future investment.
The Strategy provides the community, and council a guiding document to detail the capital and future asset improvement planning required in this space. It outlines how we will assess future projects and plan for assets over the next 10 years. It sets out a key action plan that will generate positive change in our asset makeup and sustainability.
Background
The Strategy has been developed to guide the future management, renewal, and provision of Council-managed recreational assets. The project commenced in October 2023 with project planning and consultation.
The project and development of document has included extensive consultation both externally and internally within council staff. This consultation ‘Listening Report’ was workshopped with Councillors and placed council’s website in mid-2024. A further workshop was held with Councillors on 2 April 2025 to go over the development, format, and key directions within the strategy.
This strategy was written by Parks Aquatics and Recreation staff and reviewed internally. multiple people. It was then externally peer reviewed by Xyst, a consultancy specialising in Parks and Recreation strategy development asset management.
This report seeks Council endorsement to publicly exhibit the draft ‘RecCreate – A Strategy for Recreation in the Bega Valley Shire’ attached for a period of not less than 21 days.
Options
1. Place the attached draft ‘RecCreate – A Strategy for Recreation in the Bega Valley Shire’ Recreation Strategy on public exhibition for a period of not less than 21 days; and provide a further report to Council on the feedback and outcomes received.
2. Take feedback from Councillors and amend the Strategy document prior to placing it on exhibition.
3. Do not place the draft Strategy on public exhibition and continue to not have an adopted strategy to guide the future management of Parks, Aquatics and Recreation assets.
Community and Stakeholder Engagement
Over the past two years, the development of RecCreate – A Strategy for Recreation in the Bega Valley Shire has been guided by a comprehensive and inclusive consultation process.
The most intensive phase of engagement occurred between May and July 2024, involving both internal staff and the broader community. A Listening Report, compiled in mid-2024, captured feedback from over 450 survey respondents and multiple stakeholder workshops held across the Shire. This input has directly informed the strategy’s priorities and direction.
Engagement undertaken
The development of the Strategy has been shaped by a robust and inclusive consultation process, designed to ensure the strategy reflects the diverse needs and aspirations of the community. Engagement activities were conducted across several phases, combining both quantitative and qualitative methods to build a comprehensive understanding of local priorities.
Key engagement activities included:
· Community Survey: Over 400 responses were received, providing valuable insights into usage patterns, priorities, and perceptions of existing recreational assets.
· Stakeholder Workshops: Held in Eden, Bega, and Bermagui, these sessions engaged representatives from sporting clubs, community groups, schools, and other key stakeholders.
· Internal Staff Engagement: Workshops and feedback sessions with Council staff helped incorporate operational perspectives and asset management considerations.
· Listening Report: A summary of consultation findings was compiled and presented to Councillors in mid-2024, highlighting key themes and recommendations emerging from the engagement process.
The diversity of user groups involved in the consultation was particularly valuable, offering perspectives across both active and passive recreational spaces.
The consultation process was intentionally designed to be inclusive, transparent, and responsive, ensuring that the draft strategy now presented for public exhibition is grounded in community input and aligned with local values.
The combination of survey data and workshop discussions provided Council with a well-rounded understanding of community needs, asset management, and recreation trends which has informed the development of planning principles and strategic directions underpinning the draft strategy.
Engagement planned
The proposed public exhibition represents the final stage of the consultation process, providing the community with an opportunity to review the draft strategy and offer feedback before it is finalised. This step ensures transparency and allows for any final refinements based on community input.
Financial and Resource Considerations
|
Item |
$ Excl GST |
|
Expenditure Detail |
|
|
Salaries and Wages |
$53007 |
|
Contractor for peer review (purchase order) |
$9450 |
|
Materials Purchased (consultation) |
$219 |
|
Room hire for consultation |
$192 |
|
Total Expenditure |
$62868 |
|
|
|
|
Source of Funds |
|
|
Recreation SV |
$60000 |
|
Total income available |
60000 |
|
|
|
|
Total Project Cost |
$62868 |
|
Total Available Funding |
$60000 |
|
Project Funding Shortfall |
= -$2868 |
Financial Option Impacts | Life Cycle Costing
|
|
|
|
Not applicable for operational project |
|
Legal /Policy
The development of the Strategy relates directly to the adopted policy 1.08 Parks, Aquatics and Recreation. The policy states:
Parks, Aquatics and Recreation assets are facilities and items that provide access and amenity to enable people to enjoy the environment we live in and contribute to individual and community health and well-being.
The broad scope of this policy is to see that Council managed Parks, Sportsgrounds, Pools, Playgrounds & Skate Parks, Natural Areas, and Recreational Marine assets are managed, fit for purpose, and deliver the benefits outlined above to the community.
Impacts on Strategic/Operational/Asset Management Plan/Risk
Strategic Alignment
The Strategy directly supports the goals of the Bega Valley Community Strategic Plan, Section D: Our Infrastructure, D.3 Plan and provide for improved access to community facilities and leisure and recreation assets that will meet current and future needs.
It also aligns with Council’s Delivery Program and Operational Plan by identifying priority projects and guiding future investment in recreational infrastructure.
By establishing clear planning principles and strategic directions, the Strategy provides a framework for decision-making that supports long-term community wellbeing and sustainable asset management.
Environment and Climate Change
Ecological Outcomes
The Strategy promotes nature-based recreation and low-impact infrastructure to protect sensitive environments. It encourages biodiversity-friendly design and supports active transport to reduce vehicle reliance.
Resource Efficiency – Water and Energy
Water-sensitive urban design, efficient irrigation, and drought-tolerant landscaping help reduce water use. Solar lighting, energy-efficient fittings, and smart controls support clean energy goals and lower emissions.
Intergenerational Equity
Long-term planning ensures recreational assets remain sustainable and relevant for future generations, reflecting community values and adapting to demographic change.
Alignment with Council Plans
The strategy aligns with council’s Clean Energy and Climate Resilience Plans by enhancing green infrastructure, promoting low-emission design, and creating inclusive, climate-resilient public spaces.
Economic
Local Investment and Jobs
Priority projects attract investment and create jobs in construction, maintenance, and services.
Tourism Boost
Enhanced recreational assets increase visitor appeal and support local businesses.
Grant Funding
A clear Strategy improves opportunities to access external funding, reducing reliance on ratepayers.
Lower Maintenance Costs
Renewing, adjusting provision and rationalising assets reduces long-term upkeep on lower use assets and focuses resources on high-use facilities, delivering ‘public value’.
Community Wellbeing
Quality spaces support health, connection, and resilience—delivering long-term social and economic benefits.
Risk
Community Alignment Risk
The Strategy embeds inclusive engagement and long-term planning to ensure
recreational investments reflect community values and future needs, reducing
reputational and service delivery risks.
Financial Sustainability Risk
By focusing on asset renewal and provision adjustments, the Strategy looks to
lower long-term maintenance costs and improves access to external funding,
reducing financial pressure on Council and ratepayers.
Infrastructure Performance Risk
Strategic prioritisation of high-value, well-used assets improves service
delivery and ‘public value’ and reduces the risk of underutilised
or deteriorating infrastructure.
Environmental and Climate Risk
Nature-based recreation, low-impact design, and alignment with council’s
clean energy and climate resilience plans help mitigate environmental risks and
support sustainability goals.
Economic Development Risk
The Strategy identifies projects that stimulate local investment and tourism,
strengthening regional economic resilience and employment opportunities.
Governance and Planning Risk
Application of council’s Project Delivery and Risk Management Frameworks
ensures consistent decision-making, accountability, and alignment with broader
strategic objectives.
Social / Cultural
The Strategy will enhance social cohesion by providing inclusive, accessible, and well-maintained recreational spaces that encourage community interaction. Facilities such as parks, playgrounds, and sports fields serve as gathering places that support social wellbeing, intergenerational engagement, and informal community networks.
Through extensive community consultation and participatory planning, the Strategy ensures that diverse voices—including youth, older adults, people with disabilities, and culturally diverse groups—are reflected in the design and prioritisation of recreational assets. This supports social equity and sees that all residents have the opportunity to participate in active and passive recreation.
By promoting active recreation and access to nature, the Strategy contributes to improved physical and mental health outcomes. This has long-term social benefits, including reduced healthcare costs, increased productivity, and enhanced quality of life.
The Strategy also supports the development of spaces that reflect the unique character of Bega Valley’s towns and villages. This includes opportunities for public art, community-led design, and places to hold events that celebrate local culture and foster pride of place.
Attachments
1⇩. RecCreate - A recreation strategy for the Bega Valley shire
|
15 October 2025 |
|
|
Item 9.4 - Attachment 1 |
RecCreate - A recreation strategy for the Bega Valley shire |

|
Item 9.5 |
9.5. Request to Waive Section 64 developer contributions for the Eden Men's Shed development
This report presents a request to waive Section 64 water and sewer developer contributions for the proposed development of a new Men’s Shed in Eden, as outlined in Development Application 2024.306.
Director Infrastructure
That Council approve a waiver of one equivalent tenement (ET) in water and sewer Section 64 developer contributions for the development of the Eden Men’s Shed under, as proposed under Development Application 2024.306.
Executive Summary
This report presents a request to waive Section 64 water and sewer developer contributions for the proposed construction of a new Eden Men’s Shed, as outlined in Development Application (DA 2024.306). The development is located on Council managed community land at Lot 862 DP 1108951, Princes Highway, Eden. The waiver request aligns with Council’s adopted procedures for concessions on community infrastructure.
Background
Council resolved at its Ordinary Meeting of 26 June 2024, when considering the Community Project Proposal for the construction of a new Men’s Shed at Eden as follows:
That the proposal for construction of a Men's Shed at Eden has in principle support to enable the applicant to make external funding applications subject to the applicant completing the project development checklist, sourcing external funding, working through land tenure approvals and requirements relevant to the use of the site, confirming they will be responsible for ongoing care, maintenance and renewal, and undertaking further project development and detailed design for approval.
Following the resolution, DA 2024.306 was lodged for the construction of a new Eden Men’s Shed on Council owned community land at Lot 862 DP 1108951, Princes Highway, Eden. Council has received a request to waive Section 64 developer contributions for water and sewer services associated with this development.
Water and sewerage connections are managed in accordance with Procedure 4.07.1 Connecting to Our Water and Sewer Systems, which outlines the requirements for network connections, extensions, and the payment of developer contributions. In conjunction, Procedure 4.07.2 Water and Sewer Billing, Concessions and Reductions provides guidance on eligibility for exemptions from upfront contributions. Council may grant exemptions from Section 64 charges for community infrastructure located on community or Crown land, but only through a formal resolution passed at a Council meeting.
Options
The options available to Council are:
1. Waiver of one ET in Section 64 developer contributions for the Eden Men’s Shed development. It removes the requirement for upfront payment of contributions, thereby enhancing the financial viability of the project. However, it does not exempt the property from potential High Usage charges if water consumption exceeds the 1 ET entitlement of 205 kL per annum. The primary benefit of this option is the elimination of upfront costs for the Men’s Shed group.
2. Waiver of Section 64 developer contributions above one ET for the Eden Men’s Shed development, thereby eliminating any future risk of High Usage charges for the Eden Men’s Shed. While the current Eden Men’s Shed averages less than 15 kL of water usage annually which is well below the one ET entitlement of 205 kL/ councillors may choose to increase the entitlement to further reduce any residual risk. The key benefit of this option is the certainty it provides to the Eden Men’s Shed regarding future water and sewerage billing.
3. Council may resolve to deny the request to waive developer contributions and instead apply the standard levy of one ET, as required under DA 2024.306. This approach supports the sustainability of Council’s water and sewerage headworks funding, ensuring that infrastructure upgrades continue to be financed by those utilising network capacity. However, this decision would result in the Eden Men’s Shed incurring a cost of $27,643, which may impact the project's affordability and community support.
Community and Stakeholder Engagement
Engagement undertaken
The Eden Men’s Shed proposal has undergone internal and external engagement as part of its progression through the Community Project Proposal (CPP) process. The project was classified as a major CPP due to its scope and the creation of a new asset, and was formally presented to Council for consideration on 26 June 2024
Engagement planned
The Eden Men’s Shed proponents will be notified of the Council resolution following the meeting.
Financial and Resource Considerations
The standard levy of one ET in Section 64 developer contributions has been applied to the Eden Men’s Shed development under DA 2024.306. In accordance with Council’s adopted 2025-26 Fees and Charges, the applicable Section 64 contributions are:
· Water: $11,519
· Sewer: $16,124
This results in a total headworks contribution of $27,643, which is the amount requested for waiver.
Legal /Policy
This request to waive contributions is consistent with Council’s adopted Procedure 4.07.01 – Connecting to our water or sewer system. Section 6 of the procedure allows exemptions from Section 64 charges for community infrastructure on Council or Crown land, subject to resolution by Councillors.
Impacts on Strategic/Operational/Asset Management Plan/Risk
Strategic Alignment
This request to waive developer contributions aligns with Councils Community Strategic Plan 2025 - 2042 Revision:
A.1 Provide and support opportunities for social interaction, arts and culture, activities and events.
· Waiving contributions would ensure the viability of the construction project for a new Eden Men’s shed and provide a space for people to gather, socialise and share knowledge.
A.6 Support our community to build connections and capacity to adapt to challenges
· A new Eden Men’s shed provides a space for the community to gather and support each other through difficult times, building and strengthening connections and capacity to adapt to challenges.
Environment and Climate Change
There are no direct environmental impacts associated with this proposal. The Eden Men’s Shed proposal aligns with Council’s commitment to environmental sustainability and responsible infrastructure development. As part of the Community Project Proposal (CPP) process, applicants are expected to identify any environmental benefits or risks associated with their projects. The proposed development is located on Council managed community land and will be subject to relevant environmental assessments and planning approvals.
Economic
Waiving the Section 64 developer contributions for the Eden Men’s Shed supports the economic viability of a community led development on Council managed land.
Risk
The following risks have been identified in relation to the Eden Men’s Shed development and the proposed waiver of headworks charges:
· Infrastructure funding shortfall: Approving a waiver of developer contributions may result in a shortfall in Council’s water and sewer headworks funding, which is critical for delivering future infrastructure upgrades.
· Precedent setting: The waiver may establish a precedent for exempting all community organisations operating on community or Crown land from Section 64 developer contributions and High Usage charges. This could lead to increased requests for similar exemptions, potentially affecting Council’s ability to equitably manage infrastructure costs.
· Community equity concerns: Inconsistencies with past decisions or perceived preferential treatment may lead to dissatisfaction among other community groups, particularly if similar projects have not received equivalent support.
Social / Cultural
Waiving the developer contributions would make this community construction project viable and deliver an important asset for the Eden community. The new Men’s Shed would provide a place where people can gather, learn practical skills, socialise, and support one another during challenging times. By enabling greater social connection and shared purpose, the facility would contribute to community wellbeing, resilience, and inclusion.
Attachments
Nil
|
Item 9.6 |
9.6. Reporting of minutes for committees with delegated authority and advisory committees
This report provides the adopted minutes of the S355 General Community Hall Committee for June 2025, the S355 Montreal Goldfield Committee for May 2025 and the S355 Cemetery Advisory Committee for May 2025.
Director | Infrastructure
1. That Council note the report and the minutes for the S355 General Community Hall Committee for June 2025, the S355 Montreal Goldfield Committee for May 2025 and the S355 Cemetery Advisory Committee for May 2025.
2. That Council note the motion passed by the S355 General Community Hall Committee as outlined in the report and attached meeting minutes and consider halls as a desired location in developing a series of community engagement workshops.
Executive Summary
This report provides the adopted minutes of the S355 General Community Halls Committee for June 2025, the S355 Montreal Goldfield Committee for May 2025, and the S355 Cemetery Advisory Committee for May 2025.
The report also notes the motion passed and recommendations of the S355 General Community Halls Committee.
It is important to note that these minutes have been adopted by the committees at their recent meetings, as records of their previous meeting. Additional items may have progressed since these minutes were first recorded.
Background
Committees of council are established each term of council and disbanded at the end of each council term. The previous committees were formally re-established on 9 October 2024 following the 2024 local government election.
Committees of council provide a mechanism for community involvement in the provision of council facilities or services. There are three types of committees that may be established by a council:
· Committees of Council, which are comprised entirely of Councillors.
· Section 355 Committees, which are delegated under Section 355 of the Local Government Act 1993 to undertake certain functions of Council and may include community representatives, Councillors and/or members of Council staff.
· Advisory Committees, which may be made up of community representatives, Councillors and/or members of council staff, and provide advice to Council on relevant matters.
Each committee has guidelines that detail its roles and responsibilities and, where relevant, its delegated functions. All committees are obliged to observe council’s adopted Code of Meeting Practice.
The committees, through council officers, must make their agenda and minutes public, and report meeting minutes to council periodically once adopted by the relevant committee. Agendas and endorsed minutes are published on council’s website.
Relevant recommendations of committees are reported to council meetings, through council officers, for consideration.
A brief outline of each of the committees included in this report is below.
The S355 General Community Hall Committee
The General Community Hall Committee is a strategic committee responsible for oversight of the management of Council’s 18 halls. Committee members manage the hall facility hire and work with Council to bring about improvements to the management of Council’s halls.
A motion was passed by the S355 General Community Hall Committee at its June 2025 meeting to: Encourage Councillors to establish regular series of community engagement sessions using halls as the preferred location.
Appropriate session lead times are vital to ensure venue availability, Councillor availability and community participation. These sessions would further align with BVSC Community Engagement Strategy and Policy.
S355 Montreal Goldfield Management Committee
The Montreal Goldfield Management Committee is responsible for the care and management of the Montreal Goldfield site. The committee plays a key role in conserving the environmental and cultural heritage of the site.
S355 Cemetery Advisory Committee
Council manages fourteen cemeteries across the shire. The committee is comprised of a diverse membership who work in partnership with council to bring about improvements to the management of council’s cemeteries.
Options
Option 1: Adopt the attached minutes and endorse the motion of the of the S355 General Community Hall Committee to establish regular series of community engagement sessions using halls as the preferred location.
Option 2: NOT Adopt the attached minutes and NOT endorse the motion of the of the S355 General Community Hall Committee to establish regular series of community engagement sessions using halls as the preferred location.
Community and Stakeholder Engagement
Engagement undertaken
Nominations for council committees are sought in line with council’s adopted Community Engagement Strategy and Community Engagement Toolkit. Engagement with the committees to date includes formal meetings and out of session correspondence to keep projects on track and ensure progress of key actions.
Engagement planned
All committees will be advised of the outcome of the council meeting and when the adopted meeting minutes have been posted on the BVSC website.
Future committee meetings will continue to be held as per the committee guidelines and the meeting program.
Financial and Resource Considerations
Council officer time is required to provide support to the committees as per committee guidelines which is part of the annual activities of council. A small budget is included in the adopted BVSC Delivery Plan each year to cover room hire and other meeting costs. There are no additional financial or resource considerations associated with the recommendation of this report.
Legal /Policy
The Local Government Act 1993 provides for the establishment of advisory committees to support Council decision-making. ‘Section 355 Committees’ are delegated under section 355 of the Local Government Act 1993
Impacts on Strategic/Operational/Asset Management Plan/Risk
Strategic Alignment
Community representation on the committees aligns with the following Community Strategic Plan themes.
OUR COMMUNITY: We are a resilient and caring community that supports the health and wellbeing of our residents.
OUR CIVIC LEADERSHIP: Government services have strong organisational practices that deliver services and facilities to meet community needs.
Core business of the halls and cemeteries team identified in the BVSC 2025-2029 delivery plan include:
- Oversee the operation and maintenance of fourteen cemeteries across the shire
- Manage eighteen community halls across the shire, manage the upkeep and maintenance of community halls and cemeteries to ensure safety, functionality, and preservation
- Support and coordinate 3 Section 355 Committee meetings, ensuring effective community engagement and governance for Councils General Halls, Cemetery Advisory and Montreal Goldfields Committee
Environment and Climate Change
There are no direct environmental or climate change implications associated with the recommendation of this report.
Economic
There are no direct economic implications associated with the recommendation of this report, ensuring infrastructure, services and programs are accessible, and maintaining and using our community assets such as halls, will have broader economic benefits for the community.
Risk
The establishment and operation of committees of Council are part of the regular business of Council. The recommendation of this report does not introduce any new risks to council.
Social / Cultural
Committees provide a mechanism for interested community members to play an active role in advocating for change at a local level. Committees are an instrument for facilitating open and transparent discussion about decisions made by Council and to contribute to a more socially and culturally cohesive Bega Valley Shire.
Attachments
1⇩. S355 General Community Hall Committee Meeting Minutes 24/06/2025
2⇩. S355 cemetery advisory committee meeting minutes 27/05/2025
3⇩. Montreal Goldfield S355 Committee Meeting Minutes 30/05/2025
|
15 October 2025 |
|
|
Item 9.6 - Attachment 1 |
S355 General Community Hall Committee Meeting Minutes 24/06/2025 |

|
15 October 2025 |
|
|
Item 9.6 - Attachment 2 |
S355 cemetery advisory committee meeting minutes 27/05/2025 |

|
15 October 2025 |
|
|
Item 9.6 - Attachment 3 |
Montreal Goldfield S355 Committee Meeting Minutes 30/05/2025 |

|
Council |
15 October 2025 |
Staff Reports – Organisational Services
15 October 2025
10.1 Refer Financial Statements for Audit................................................................ 155
10.2 Related Party Returns and Annual Disclosures by Councillors and Designated Persons 2024/2025......................................................................................................... 168
10.3 Code of Meeting Practice.................................................................................. 174
10.4 For Adoption Policy 3.08 Management of Asbestos and Silica - Amendments following submission......................................................................................................... 238
10.5 Certificate of Investment August 2025............................................................. 256
10.6 Certificate of Investment September 2025....................................................... 262
|
Item 10.1 |
10.1. Refer Financial Statements for Audit
Each year the Local Government Act 1993 requires Council to refer the annual financial statements to the auditors.
Director Organisational Services
Council resolve:
1. That Council’s General Purpose Financial Report is prepared in accordance with:
a) The Local Government Act 1993 (as amended) and the Regulations made thereunder; and
b) The Australian Accounting Standards and professional pronouncements; and
c) The Local Government Code of Accounting Practice and Financial Reporting; and
d) Presenting fairly the Council’s operating result and financial position for the year; and
e) Council’s accounting and other records.
2. That Council’s Special Purpose Financial Reports are prepared in accordance with:
a) NSW Government Policy Statement “Application of National Competition Policy to Local Government”; and
b) Office of Local Government Guidelines “Pricing and Costing for Council Businesses: A Guide to Competitive Neutrality”; and
c) The Local Government Code of Accounting Practice and Financial Reporting; and
d) The Department of Water and Energy Best Practice Management of Water Supply and Sewerage Guidelines.
e) Presenting fairly the operating result and financial position for each of Council’s declared Business Activities for the year; and
f) Council’s accounting and other records.
3. That the signatories be required to confirm they are not aware of any matter that would render the reports false or misleading in any way and include such information in the statement.
4. That Council authorises the Mayor, Deputy Mayor, Chief Executive Officer and the Responsible Accounting Officer to execute the statement required by Section 413(2)(c) of the Local Government Act 1993.
5. That Council endorses the referral of General Purpose Financial Report and Special Purpose Financial Reports to Council’s Auditor for audit.
Executive Summary
Council is legally required to refer its statements to audit. The purpose of this report is to meet the requirements under the Local Government Act and to meet directions issued by the Office of Local Government (OLG). This is not an approval of the 2025 financial reports, rather it is a process where the financial reports are prepared for, and audited by, independent entities.
Background
In accordance with Section 413 of the Local Government Act 1993 (the Act) Council must “refer to audit” the Financial Reports for the financial year ending 30 June 2025. It outlines that Council must refer its Financial Reports to audit prior to them being audited and advises Council must make a statement in the approved form as to its opinion on the preparation of the General Purpose Financial Report (and by extension the Special Purpose Financial Report).
Financial statements are a source of information that can assist Councillors and the public to understand the financial situation of a Council. This includes an assessment of the end of financial year results with the Office of Local Government benchmarks for various indicators that assess financial sustainability.
The key statements attached to this report include:
· Income Statement
· Statement of Comprehensive Income
· Statement of Financial Position
· Statement of Changes in Equity
· Statement of Cash Flows
Council continues to make a conscious effort to deliver services in the most effective way and made budget adjustments across many services to improve the cash position of Council. Identifying and implementing process efficiencies has been a key strategy and supported by the organisation prioritising delivery of projects and services funded by grants.
While the FY2025 Operational Plan expected a $3,204,000 surplus, the final result was a $9,966,000 deficit as of 30 June 2025.
Cash and cash equivalents rose by $20,415,000 to $160,192,000, with $111,842,000 under external restrictions and $48,350,000 available for internal obligations. Internal allocations remain well-covered, so releasing further funds is unnecessary at this time.
The Officer’s recommendation provides the necessary authority for the Mayor, Deputy Mayor, Chief Executive Officer and Responsible Accounting Officer to complete the General Purpose and Special Purpose Financial Reports after audit.
Options
Adoption of the recommendation ensures Council complies with end of financial year reporting requirements of the Local Government Act.
Community Engagement
Consultation Planned
A formal presentation of the audited financial statements will be made as an open report to the public session as soon as they are received from the auditor. The external auditors also present findings to the Bega Valley Shire Council Audit, Risk and Improvement Committee (ARIC).
Council consideration of input
After Council has finalised its audited financial statements, Councillors will be provided with a workshop on the final results in detail. Following completion of the audit there will be a public address from both external auditors Crowe and the NSW Audit Office.
Financial and resource considerations
The financial reports represent a summary of the financial result of Council operations for FY2025. The recommendations in this report do not represent Council's approval of the FY2025 financial reports.
There is an annual operational budget allocation for the preparation of financial reports and independent audit.
|
Funding source |
|
Amount |
|
General Fund Budget | Audit Services Financial Reports |
$ |
116,600 |
|
Budget adjustment |
$ |
- |
|
Total Budget required |
$ |
116,600 |
Legal /Policy
In accordance with Section 413 of the Local Government Act 1993, Council must “refer to audit” the Financial Reports for the financial year ending 30 June 2025.
The financial statements are prepared in accordance with the Act, the regulations thereunder, Australian Accounting Standards and professional pronouncements and the Local Government Code of Accounting Practice and Financial Reporting.
Impacts on Strategic/Operational/Asset Management Plan/Risk
Strategic Alignment
Community Strategic Plan
E.1 Lead, govern and regulate in and ethical, equitable, transparent and accountable way.
This reporting supports the implementation of Council’s adopted Delivery Plan 2025-2029 as identified through the following core business activity undertaken by the finance team to:
· Prepare compliant financial reports including audited annual accounts
· Provide relevant, timely and accurate financial information for corporate and audit reporting
Environmental / Sustainability
The financial audit process is instrumental in supporting Council’s sustainability objectives by ensuring that financial governance aligns with long-term community resilience. Audits provide independent assurance that resources are being allocated responsibly and reinforces Council’s strategic guiding principles of being financially sustainable, efficient and effective, and transparent.
Audits promote continuous improvement by highlighting opportunities to strengthen the integration of financial, environmental and corporate planning. Fulfilling audit requirements demonstrates Council’s capacity to deliver services and infrastructure for our community.
The audited financial results at 30 June 2025 provide information on Councils financial performance and indicators for assessing council’s financial sustainability.
Economic
Council is a major contributor to the local and regional economy. Assessment of financial performance is a key input of decision making, with the goal of ensuring a financially responsible and effective organisation.
The financial statements provide an opportunity to assess actual performance against strategic plans and highlight any challenges of unexpected events that may have impacted the final results.
Risk
This report minimises the risk of non-compliance with the Local Government Act 1993.
Despite there being no requirement to report the balances of externally restricted reserves, internally restricted reserves and unrestricted reserves, Council has continued to include this information in our financial reports for accountability and transparency.
Social / Cultural
Reporting financial performance in a timely manner meets legislative requirements and builds confidence in the management and leadership of the Council. Benchmarking against similar Councils (Category 4) allows for context in the local government environment.
Financial decisions impact the social and cultural aspects of Council’s operations in the community. The key financial statements attached provide an annual summary of the impact of those decisions at a point in time; that being, the end of financial year (30 June 2025) and inform future direction and financial strategies that support delivery of community assets and services.
Attachments
1⇩. General Purpose Financial Statements for period ended 30 June 2025.
2⇩. Special Purpose Financial Statement for Councillors for period ended 30 June 2025
|
15 October 2025 |
|
|
Item 10.1 - Attachment 1 |
General Purpose Financial Statements for period ended 30 June 2025. |

|
15 October 2025 |
|
|
Item 10.1 - Attachment 2 |
Special Purpose Financial Statement for Councillors for period ended 30 June 2025 |

|
Item 10.2 |
10.2. Related Party Returns and Annual Disclosures by Councillors and Designated Persons 2024/2025
This report confirms the lodgement of Related Party and Pecuniary Interest Returns by councillors and designated persons for the period 1 July 2024 to 30 June 2025.
Director Organisational Services
That Council note the report on the lodgement of Related Party Returns and Annual Disclosures by Councillors and Designated Persons for the period ending 30 June 2025.
Executive Summary
Related Party Returns and Annual Disclosures by Councillors and designated persons must be lodged by 30 September each year, which is within three months of the end of the financial year.
Additionally, Councillors are required to submit a return within three months of being elected.
Background
The disclosures of interest recorded in this report relate to councillors, key management personnel, their close family members, and any entities controlled or jointly controlled by any of them.
Related Party Returns
The following persons were required to submit a related party disclosure form. These forms are provided to Council’s Auditors as part of the annual financial audit process.
|
Related Party Returns |
||
|
Name |
Position |
Comments |
|
Allen, Tony (Anthony) |
Elected Official |
Lodged |
|
Daly, Simon |
Elected Official |
Lodged |
|
Fitzpatrick, Russell |
Elected Official |
Lodged |
|
Haggar, Peter |
Elected Official |
Lodged |
|
Mudaliar, Clair |
Elected Official |
Lodged |
|
Nadin, Mitchell |
Elected Official |
Lodged |
|
Noble, Peggy |
Elected Official |
Lodged |
|
O’Neil, Helen |
Elected Official |
Lodged |
|
Porter, David |
Elected Official |
Lodged |
|
McMahon, Anthony |
Chief Executive Officer |
Lodged |
|
Bolton, Iliada |
Director |
Lodged |
|
Harrison, Emily |
Director |
Lodged |
|
MacFarlane, Ian |
Director |
Lodged |
Disclosures by Councillors and Designated Persons Return
The Local Government Act 1993 (LG Act) requires Councillors, the Chief Executive Officer, Directors, and people nominated by the Council as “Designated Persons” to complete Annual Disclosures of Interest Returns. This requirement is also outlined in Council’s code of conduct: Part 4.21 – Pecuniary Interest: Disclosure of interests in written returns.
Councillors and Executive
Councillors are required to lodge Disclosures by Councillors and Designated Persons forms annually. These requirements are outlined in Council’s code of conduct and LG Act. Each section of the return must be answered. Officers from the Office of Local Government may make inspections from time to time.
Amendments to the LG Act enable Councillor participation in all elements of decision making relating to the exhibition and adoption of the Local Environment Plan (LEP) and Development Control Plan (DCP). The table below shows the lodgement status for the current return period (FY2025) of Councillors, elected in 2024, and senior staff:
|
Annual Return – Disclosure of Interest |
||
|
Name |
Position |
Comments |
|
Allen, Tony (Anthony) |
Elected Official |
Lodged |
|
Daly, Simon |
Elected Official |
Lodged |
|
Fitzpatrick, Russell |
Elected Official |
Lodged |
|
Haggar, Peter |
Elected Official |
Lodged |
|
Mudaliar, Clair |
Elected Official |
Lodged |
|
Nadin, Mitchell |
Elected Official |
Lodged |
|
Noble, Peggy |
Elected Official |
Lodged |
|
O’Neil, Helen |
Elected Official |
Lodged |
|
Porter, David |
Elected Official |
Lodged |
|
McMahon, Anthony |
Chief Executive Officer |
Lodged |
|
Bolton, Iliada |
Director |
Lodged |
|
Harrison, Emily |
Director |
Lodged |
|
MacFarlane, Ian |
Director |
Lodged |
Independent Audit, Risk & Improvement Committee (ARIC)
In accordance with the Local Government (General) Regulation 2021, members of Council’s Independent Audit, Risk & Improvement Committee, are required to lodge a Disclosure of Pecuniary Interests. Current members of the Independent Audit, Risk and Improvement Committee have lodged forms.
|
Annual Return – Disclosure of Interest |
||
|
Name |
Position |
Comments |
|
Booth, John Martin |
ARIC Member |
Lodged |
|
Derera, Nick |
ARIC Member |
Lodged |
|
Pryke, Michael |
ARIC Member |
Lodged |
Other Committee Members
Although the Council has traditionally not “designated” members of its various Community Committees the obligation to declare a conflict of interest under the LG Act still applies to these members. Committee members are required to observe the pecuniary interest provisions of the LG Act, declare an interest and not vote on matters in which they have a pecuniary interest. They must also leave the room in which the meeting is being held, after declaring an interest. All council committees are aware of this provision of the legislation.
Designated staff members
The following list represents the staff roles considered as officers required to submit a Pecuniary Interest Return for the current return period:
|
Annual Return – Disclosure of Interest |
|
|
Position |
Comments |
|
Biosecurity Invasive Species Coordinator |
Lodged |
|
Building Certification Coordinator |
Lodged |
|
Building Surveyor |
Lodged |
|
Bushfire Planning Assessment Officer |
Lodged |
|
Civil Assets Superintendent |
Not lodged |
|
Compliance and Ranger Services Coordinator |
Lodged |
|
Compliance Officer |
Lodged |
|
Coordinator Development Support Services |
Lodged |
|
Development Specialist |
Lodged |
|
Development Engineer |
Lodged |
|
Engineering Cadet |
Lodged |
|
Environmental Health Coordinator |
Lodged |
|
Environmental Management Coordinator |
Lodged |
|
Graduate Town Planner |
Lodged |
|
Graduate Town Planner |
Lodged |
|
Manager Assets & Works |
Lodged |
|
Manager Certification & Compliance |
Not lodged |
|
Manager Corporate Planning and Improvement |
Lodged |
|
Manager Finance |
Lodged |
|
Manager Information Technology |
Lodged |
|
Manager Parks, Aquatics & Recreation |
Lodged |
|
Manager Planning and Sustainability |
Lodged |
|
Manager Project and Design Services |
Lodged |
|
Manager Property and Legal |
Lodged |
|
Manager Community and Cultural Services |
Lodged |
|
Manager Water & Sewer |
Lodged |
|
Manager Waste Services |
Lodged |
|
Planning Contractor |
Lodged |
|
Planning Services Coordinator |
Lodged |
|
Plumbing & Drainage Compliance Officer |
Lodged |
|
Procurement & Contracts Coordinator |
Lodged |
|
Procurement & Contracts Officer |
Lodged |
|
Procurement compliance & reporting Officer |
Lodged |
|
Senior Building Surveyor |
Lodged |
|
Senior Development Engineer - Planning |
Lodged |
|
Senior Town Planner |
Lodged |
|
Strategic Planner |
Lodged |
|
Strategic Planning Coordinator |
Lodged |
|
Town Planner |
Lodged |
|
Town Planner |
Lodged |
|
Town Planner |
Lodged |
|
Town Planner |
Lodged |
|
Town Planner |
Lodged |
|
Town Planning Cadet |
Lodged |
|
Town Planning Cadet |
Lodged |
|
Town Planning Cadet |
Lodged |
|
Water and Sewer Development Engineer |
Lodged |
|
Waste Strategy Coordinator |
Lodged |
Council’s governance team will continue to work with staff to have the disclosures of interest completed and submitted.
Options
Returns are required to be tabled at the next Council Meeting after 30 September. Members of the public are entitled to inspect the returns of councillors, designated persons and delegates. Inspection of the records is free of charge.
Information about Disclosures of Interest can be found on Council’s website Disclosures of interest.
Copies of the returns can be viewed using these links:
· Councillors Disclosure of Interest Returns
· Designated Persons Disclosure of Interest Returns
The register of Disclosure of Interest Returns can be viewed at Council’s administration office, Zingel Place Bega, on request.
Community and Stakeholder Engagement
Engagement undertaken
No community engagement is required for this process. Councillors and designated persons are provided with information regarding the requirements for lodgement of returns by governance staff and the executive office.
The relevant documents are redacted and available to the public on Council’s website.
Engagement planned
Internal stakeholders are provided with updated information when returns are due for submission for the 2025/2026 year.
Financial and Resource Considerations
Management of Council’s related party returns, and annual disclosure returns register is included in Council’s adopted budget and forms part of the core services of Council’s governance team.
Legal /Policy
Council must comply with disclosure requirements under its code of conduct and the following legislation and guidelines:
· Local Government Act 1993
· Local Government (General) Regulation 2021
· Australian Accounting Standard AASB124 Related Party Disclosures and the Australian implementation guidance for not-for-profit public sector entities (AASB.124)
· Privacy and Personal Information Protection Act [PPIP] (1998)
· Government Information Public Access Act [GIPA] (2009).
The LG Act requires Councillors, the Chief Executive Officer, directors, and people nominated by the Council as “Designated Persons” to complete annual disclosures of interest returns. This is outlined in Council’s code of conduct: Part 4.21 – Pecuniary Interest: Disclosure of interests in written returns.
Impacts on Strategic/Operational/Asset Management Plan/Risk
Strategic Alignment
The review and lodgement of Related Party Returns and Annual Disclosures by Councillors and Designated Persons directly supports Council’s strategic and operational commitments as outlined in the Delivery Plan 2025–2029. This activity aligns with the following core business functions:
· Support the organisation to meet requirements of
o Government Information (Public Access) Act 2009 (GIPA)
o Privacy and Personal Information Protection Act 1998 NSW (PPIP)
o Copyright Act 1968
o Public Interest Disclosure Act 1994
o Local Government Act 1993
o NSW Industrial Relations Act 1996
o NSW State Records Act 1998
These functions ensure that Council maintains a robust governance framework that supports compliance, transparency, and accountability.
Council’s six strategic principles guide decision-making and are demonstrated through this process as follows:
· Effective and
Efficient
Timely lodgement and review of disclosures ensures streamlined governance and
supports service delivery.
· Equitable and
Inclusive
Uniform requirements across all designated persons and elected officials
promote fairness and inclusivity.
· Responsive
The process allows Council to adapt to legislative changes and community
expectations around ethical governance.
· Transparent
Public access to disclosure returns reinforces openness and builds community
trust.
· Financial
Sustainability
Supports sound financial governance by identifying and managing potential
conflicts of interest.
· Accountable
Reinforces individual responsibility and compliance with statutory obligations,
enhancing internal and external confidence.
Environment and Climate Change
There are no direct environment and climate change impacts relating to the recommendations of this report.
Economic
There are no direct economic impacts relating to the recommendations of this report.
Risk
Public reporting of Related Party Returns and Annual Disclosures by Councillors and designated staff is a key demonstration of Council’s commitment to ethical governance and transparency. It highlights how local government actively manages potential conflicts of interest in decision-making processes and reinforces compliance with the Code of Conduct. This practice supports effective and impartial decision-making and helps reduce any perception that Councillors or staff may use their positions for personal gain or to benefit others.
It also assists Councillors, staff, and the broader community in understanding the procedures Council follows to prevent situations that may give rise to perceived or actual preferential treatment.
As of the reporting date, five Designated Persons have not lodged their disclosures for the period ending 30 June 2025 by the required due date. Council’s governance team will continue to work with those staff to have the information submitted.
Social / Cultural
There are no direct social or cultural impacts related to the recommendations of the report.
Attachments
Nil
|
Item 10.3 |
10.3. Code of Meeting Practice
This report presents Council’s revised Code of Meeting Practice (Procedure 6.02.02) for public exhibition and subsequent adoption, ensuring full compliance with the Office of Local Government’s (OLG) updated Model Code of Meeting Practice for Local Councils in NSW (August 2025). The draft incorporates all mandatory provisions and key changes required by OLG, following recent legislative and policy updates.
Director Organisational Services
1. That Council endorse the draft Procedure 6.02.02 Code of Meeting Practice (Attachment 1 to this report) for public exhibition for a period of at least 28 days, with submissions to be received for 42 days.
2. That a further report be presented to Council on any submissions received, or if no submissions are received, the exhibited Code if Meeting Practice be adopted and published on Council’s website.
Executive Summary
The Office of Local Government (OLG) released an updated Model Code of Meeting Practice in August 2025. Council’s draft Code of Meeting Practice Procedure has been reviewed and amended to incorporate all mandatory provisions, including the prohibition of pre-meeting briefings and the requirement to livestream and record meetings from 1 January 2026. These changes are designed to enhance transparency, accountability, and community engagement in Council decision-making.
This procedure supports Council’s Policy 6.02 Behaviour of Councillors and Staff.
Mandatory provisions must be adopted by all councils by 31 December 2025. The draft Code is based on the OLG Model Code and maintains supplementary sections previously adopted by Council, ensuring both compliance and continuity with local practice.
Background
Legislative Basis
The Model Code of Meeting Practice for Local Councils in NSW (Model Meeting Code) is established under section 360 of the Local Government Act 1993 and the Local Government (General) Regulation 2005. It provides a consistent framework for conducting council meetings across the State.
The Office of Local Government (OLG) issued Circular 25-20 and an updated FAQ in August 2025, outlining significant changes and clarifying mandatory requirements.
Scope of Application
The Model Meeting Code applies to all meetings of councils and committees where all members are councillors. Committees that include non-councillor members may adopt alternative meeting rules, such as committee Terms of Reference (TOR).
Adoption Requirements
Council’s previous Code of Meeting Practice has been reviewed and updated to reflect these changes, ensuring ongoing compliance and best practice governance. Prior to adoption, councils must consult with their communities to ensure transparency and inclusiveness.
Purpose and Benefits
The Model Meeting Code promotes accessible, orderly, effective, and efficient meetings. It ensures consistency in meeting procedures while allowing flexibility through non-mandatory provisions that councils may choose to adopt based on local needs.
Key changes to 2025 - OLG Update
The 2025 Model Code introduces several significant mandatory changes:
· Prohibition on pre-meeting briefings: Councils can no longer hold private briefing sessions on matters that should be considered in public meetings, unless confidential.
· Livestreaming and recording: All meetings of the council and committees comprising only councillors must be livestreamed and audio-visually recorded from 1 January 2026. Recordings must be published on Council’s website for the balance of the council term or for 12 months, whichever is later.
· Public forums: Councils must provide for public forums, preferably before committee meetings, to enable community engagement.
· Order and conduct: The mayor has expanded powers to remove councillors or members of the public for disorderly conduct.
· Transparency: Information considered at closed meetings must be made public after it ceases to be confidential. Councils must give reasons when making planning decisions that differ from staff recommendations.
· Other changes: New rules of etiquette, record of voting, time limits on meetings, and procedures for recommitting resolutions to correct errors.
Further details are available in the OLG FAQ and Circular 25-20 attached to this report.
Options
· Option 1: Endorse the draft Code of Meeting Practice for public exhibition and subsequent adoption, ensuring compliance with OLG requirements and minimising governance risk. Recommended.
Council officers have made recommendations in the attached draft document relating to the following items that are for council’s decision:
o Voting - clause 11.11
o Dealing with items by exception – Part 3
o Expulsion from meetings – clause 15.16
o Minutes of Council committee meetings – clause 20.25
o Rescinding or altering Council decisions – clause 17.10; 17.12; 17.13; 17.14
o Recommitting resolutions to correct an error – clause 17.15; 17.16; 17.17; 17.18; 17.19; 17.20
o Time limits on Council meetings – Part 18
· Option 2: Do not endorse the draft Code. Consequence: Council risks non-compliance, and any inconsistent provisions will be overridden by the Model Code from 1 January 2026.
· Option 3: Recommend further amendments to the non-mandatory or supplementary provisions of the draft Code prior to public exhibition and adoption. This allows Council to refine the draft, provided all mandatory OLG requirements are retained, maintaining compliance and minimising governance risk.
Community and Stakeholder Engagement
Engagement undertaken
Staff have reviewed circulars and documents from the Office of Local Government to ensure the review is consistent with the new requirements.
Engagement planned
Under section 361 of the Local Government Act 1993, before adopting a new code of meeting practice, councils must exhibit a draft for at least 28 days and provide at least 42 days for community submissions.
Council is committed to engaging with the community in accordance with its adopted Community Engagement Strategy. The draft Code will be exhibited on Council’s website (“Have Your Say” page) for 42 days to allow community submissions.
Financial and Resource Considerations
Bega Valley Shire Council is well-positioned to implement the 2025 Model Code of Meeting Practice with minimal financial and resource impact. The Council already livestreams and records meetings, hosts recordings on its website, and has trained staff and established policy review processes.
New considerations introduced by the 2025 Code include:
· Longer retention of meeting recordings (minimum 12 months or balance of council term), which may require minor increases in digital storage capacity.
· Discontinuation of pre-meeting briefings, potentially requiring administrative adjustments to ensure councillors receive necessary information through formal channels.
· Public exhibition and consultation obligations for the draft Code, which will be managed within existing governance resources.
No additional financial expenditure or resource allocation is anticipated. Operational impacts are expected to be absorbed within existing budgets and staffing levels.
Legal /Policy
The draft Code aligns with the Local Government Act 1993, Local Government (General) Regulation 2021, and the OLG Model Code of Meeting Practice (August 2025). Adoption ensures Council’s meeting procedures are legally compliant and reflect best practice.
Councils must adopt the draft code of meeting practice that incorporates the updated mandatory provisions of the Model Meeting Code of Practice by 31 December 2025. A council’s adopted meeting code must not contain provisions that are inconsistent with the mandatory provisions.
Councils and committees of councils of which all the members are councillors, must conduct their meetings in accordance with the code of meeting practice adopted by the council.
Impacts on Strategic/Operational/Asset Management Plan/Risk
Strategic Alignment
This report supports the FY2025 Delivery Program and core governance activities, ensuring Council meets legislative requirements and maintains effective, transparent decision-making processes.
Environment and Climate Change
There are no environmental or climate change considerations related to this report.
Economic
There are no major economic impacts related to this report.
Risk
Adoption of a Code of Meeting Practice that aligns with the OLG Model Code ensures Council complies with all mandatory requirements as required under the Local Government Act 1993 and follows local government best practice.
The document provides clear guidelines for Council and the community on how Council and committee meetings should be conducted. Adoption of the updated Code reduces governance risk and supports community confidence.
Social / Cultural
The Code of Meeting Practice informs the community on how Council meetings are conducted and how the public can participate in Council decision-making.
Attachments
1⇩. 2025 Draft for Public Exhibition - Procedure 6.02.2 Code of Meeting Practice (October 2025)
2⇩. 2025 Model Meeting Code - FAQ
3⇩. 2025 Model Meeting Code - Circular No 25-20
|
15 October 2025 |
|
|
Item 10.3 - Attachment 1 |
2025.10.15 ATTACHMENT - Draft for Public Exhibition - Procedure 6.02.2 Code of Meeting Practice (October 2025) |

|
Item 10.4 |
10.4. For Adoption Policy 3.08 Management of Asbestos and Silica - Amendments following submission
This report recommends the adoption of the amended Policy 3.08 Management of Asbestos and Silica following public exhibition and feedback.
Director Organisational Services
1. Council notes the submission received at attachment 1.
2. Council adopt Policy 3.08 Management of Asbestos and Silica as at attachment 2 of this report.
Executive Summary
Policy 3.08 Management of Asbestos and Silica has been reviewed in accordance with Section 165 of the Local Government Act 1993, which requires councils to assess the relevance and effectiveness of existing policies within 12 months of a local government election. Following a Councillor workshop and public exhibition period, one submission was received and considered.
The submission considered council’s operating environment and further changes are recommended to the policy placed on public exhibition. The proposed amendments improve clarity, legislative alignment, and acknowledge Council’s financial and operational realities, particularly work, health and safety regulations and management of respirable crystalline silica.
Background
Local government policies are crucial for fostering a well-functioning, vibrant, and responsive community. They enable a Council to identify and implement strategies to guide decision making to address local issues effectively.
Under Section 165 of the Local Government Act 1993, councils are required to review their existing policies within 12 months of a local government election to ensure the policies are relevant, effective, and fit for purpose.
On 9 July 2025, the draft Policy 3.08 Management of Asbestos and Silica was workshopped with Councillors and at the Council meeting on 20 August 2025, Council endorsed the revised version to be placed on Public Exhibition and open for comment for a period of 42-days. The draft was exhibited on 21 August 2025 and received one submission on 12 September 2025.
The draft policy is being recommended to be updated before council finally adopts the policy and incorporates amendments based on the feedback.
Summary of Feedback
Feedback on the draft Policy 3.08 Management of Asbestos and Silica has highlighted several operational concerns that have resulted in the officer’s recommendation to make additional updates to the policy recommended for adoption:
· The scope and definitions are unclear, particularly regarding whether the policy applies to infrastructure such as unsealed gravel roads, which may contain silica
· The policy does not reflect Council’s current resource constraints or the principle of “so far as reasonably practicable”, which is embedded in the recently adopted Asset Management Policy and relevant to Council’s Special Rate Variation scenario
· There is limited reference to the Work Health and Safety (Mines and Petroleum Sites) Regulation 2022, which is critical for quarrying and material handling activities
· The draft may overstate compliance expectations, risking future non-compliance or policy failure, especially in areas like road management where full mitigation is not financially feasible.
Summary of Proposed Policy Insertions
To address identified gaps and ensure the policy is both practical and aligned with Council’s operational context, the following insertions are proposed:
· Section 1.1 Scope: Removed infrastructure from the sentence “It covers all Council-owned or managed facilities and work sites,” and clarifies that application to infrastructure such as unsealed roads will be subject to risk assessment and available resources.
· Section 1.2 Purpose: Adds the principle of “so far as is reasonably practicable” and acknowledges that Council will implement controls to the extent that resources allow
· Section 1.3 Definitions: Introduces a definition for “work site”, complementing the existing definition of “workplace”
· Section 2 Legislation: Includes reference to the Work Health and Safety (Mine and Petroleum Sites) Regulation 2022, relevant to quarrying and material handling
· Section 3.1 Policy Statement: Incorporates “so far as is reasonably practicable”
· Throughout document: Updated Work Health and Safety Regulation 2025 from 2017
· End of document: Include comment to explain Council’s ability to achieve full compliance with all requirements this policy is subject to available resources and funding. Where full compliance is not reasonably practicable, Council will document the reasons and apply controls to the extent possible.
These insertions aim to improve clarity, legislative alignment, and ensure the policy reflects Council’s financial and operational realities. The proposed amendments have been highlighted as tracked changes in the attachment to this report.
Options
The options available to Council are:
1. Council can accept the submission, endorse the proposed amendments to the publicly exhibited policy and adopt the policy as attached to this report. Recommended.
2. Council can adopt the draft policy that was placed on public exhibition without making further amendments.
3. Council can propose other amendments to the policy in response to the submission received, before formally adopting it.
Community and Stakeholder Engagement
Relevant Council officers have been engaged internally as subject matter experts to review the content of the policy presented in this report. Their input has informed the amendments to the policy and the preparation of this report.
In response to the submission received, Council officers recommend that the policy previously placed on public exhibition be further amended (Attachment 2) and adopted by Council.
Engagement undertaken
Members of the community were invited to make submissions on the draft policy during the 42-day consultation period commencing on 21 August 2025.
The draft policy was accessible to the community via the ‘Have your say’ page on the Council website.
Council has reviewed the submission from staff and deemed the recommended changes as a major change in the policy's scope, purpose, or intent.
Engagement planned
Following adoption by Council, the final version of the policy will be published on Council’s website for public access.
Financial and Resource Considerations
The review and amendment of this policy has been undertaken within existing operational budgets. No additional funding is required for implementation.
Ongoing servicing and administrative support will continue to be managed within current staffing levels, with no anticipated impact on other departmental service delivery.
Legal /Policy
The review of the policy presented in this report is consistent with the requirements of Section 165 of the Local Government Act 1993, which states:
165 Amendment and revocation of local policy
(1) A council may amend a local policy adopted under this Part by means only of a local policy so adopted.
(2) An amending local policy may deal with the whole or part of the local policy amended.
(3) A council may at any time revoke a local policy adopted under this Part.
(4) A local policy (other than a local policy adopted since the last general election) is automatically revoked at the expiration of 12 months after the declaration of the poll for that election.
The process also aligns with Council’s internal Policy Review, Adoption and Amendment Procedure, which mandates periodic review and amendment of policies through formal Council resolution.
Additionally, the review is consistent with the NSW State Policy Framework administered by the Office of Local Government, which encourages councils to govern in a lawful, transparent, and accountable manner. This includes consideration of mandatory guidelines and best practice principles under Section 23A of the Local Government Act 1993.
Impacts on Strategic/Operational/Asset Management Plan/Risk
Strategic Alignment
This report aligns with the following 2025-29 Delivery Program and operational activities:
CSP Theme
Our civic leadership – We are an informed and engaged community with transparent, consultative and responsive Government services.
Delivery Program – Appendix 2
Governance and Records Service Summary | Core business:
· Monitor and review Council’s policy and procedure framework
· Coordinate the updating of Council’s policies and procedures
Completing a review of policies demonstrates council’s commitment to our 6 strategic guiding principles in the following ways:
· Effective and
efficient
Reviewing the policies provides a proactive way of improving service delivery
by defining the scope of our services.
· Equitable and
inclusive
Placing the draft policies on public exhibition encourages all stakeholders to
participate in the review process.
· Responsive
Engaging with the community through the consultation process will allow the
organisation to identify ways of serving the community and will help improve
performance.
· Transparent
Provision of the reviewed documents through the public exhibition period allows
our community to view the work of council officers and recommendations for
change and improvement.
· Accountable
The review process enhances both internal and external engagement.
Environment and Climate Change
Council officers consider the impacts of each policy relating to the environment and climate change during the review process.
There are no negative impacts on the environment or climate change relating to the preparation of this report and its recommendations.
Economic
The review of individual policies enables Council to consider the economic impacts of policy implementation.
This policy acknowledges the limited financial resources in managing asbestos and respirable crystalline silica across all council’s infrastructure assets. The policy has been updated to provide clarity and reflect these limitations to ensure commitment only where reasonably practicable to do so.
Risk
Failure to review its policies poses a legal risk relating to non-compliance with the Local Government Act 1993.
There is also reputational risk that must be considered as part of this report. The proposed community engagement and consultation prior to adoption mitigates reputational risks by ensuring members of the community are given the opportunity to participate in policy development and decision-making processes.
The updated policy indicates that management of asbestos and respirable crystalline silica must be in accordance with our enterprise risk management framework and considers financial, workforce and service delivery risks.
Social / Cultural
The policy review process reflects Council’s commitment to inclusive governance and community engagement. By inviting public submissions during the exhibition period, Council has actively sought to incorporate the lived experiences, insights, and expertise of community members into the development of public policy.
This approach strengthens the relevance and responsiveness of Council’s policies, ensuring they reflect local values and priorities. It also reinforces transparency and trust in decision-making by recognising the role of the community as co-creators of public documents.
There were no submissions made to this policy by the public.
Attachments
1⇩. Gary Louie feedback DRAFT Policy 3.08 Management of Asbestos and Silica
2⇩. DRAFT v3.3 - Policy 3.08 Management of Asbestos and Silica
|
15 October 2025 |
|
|
Item 10.4 - Attachment 1 |
Gary Louie feedback DRAFT Policy 3.08 Management of Asbestos and Silica |

|
15 October 2025 |
|
|
Item 10.4 - Attachment 2 |
DRAFT v3.3 - Policy 3.08 Management of Asbestos and Silica |

|
Item 10.5 |
10.5. Certificate of Investment August 2025
This report details Council’s cash and investments at 31 August 2025.
Director Organisational Services
1. That Council receive and note the report on Council’s investment position at 31 August 2025.
2. That Council notes the certification of the Responsible Accounting Officer.
Executive Summary
I, Judy Jordan, as the Responsible Accounting Officer of Bega Valley Shire Council, hereby certify the investments listed in the attached reports have been made in accordance with Section 625 of the Local Government Act 1993 (the LG Act) and clause 212 of the Local Government (General) Regulation 2021.
On 31 August 2025 the total capital value of cash and investments was $161,716,516 with 88% of Council’s investment portfolio directed to term deposits and the remainder held in cash deposit accounts. The following is investment information by fund:
|
Fund |
August-2025 ($’000) |
|
General Fund |
62,222 |
|
Water Fund |
29,552 |
|
Sewer Fund |
69,942 |
|
TOTAL |
161,716 |
All investments have been appropriately recorded in Council’s financial records, reconciled monthly.
Background
The Local Government Act 1993 and Local Government Regulation 2021 require that the Responsible Accounting Officer must present to Council monthly, the status of the investments held by Council. The Responsible Accounting Officer must detail the investments held, and their compliance with both internal policy and external regulation under the Ministerial Order of Investments.
Options
This is a receive and note report and does not require consideration of options for decision.
Community and Stakeholder Engagement
Engagement undertaken
There is no community or stakeholder engagement associated with the recommendation of this report.
Engagement planned
The investment details of Council are published in Council business papers and are publicly available at Council offices and on Council’s website.
Financial and Resource Considerations
A list of Council’s cash and investments held at 31 August 2025 is detailed below:
|
Table 1: Cash and Investments listing |
|||||||
|
Issuer |
Rating |
Type |
Purchase |
Maturity |
Interest Rate (%) |
Capital Value ($) |
|
|
Commonwealth Bank (Operating cash account) |
AA- |
CASH |
- |
- |
3.85 |
9,571,356.19 |
|
|
Commonwealth Bank (At Call cash account) |
AA- |
CASH |
- |
- |
3.90 |
10,000,000.00 |
|
|
NSW Treasury Corporation (Strategic Cash Fund) |
AA- |
CASH |
- |
- |
- |
145,827.85 |
|
|
BankVic |
BBB+ |
TD |
05/06/2024 |
05/09/2025 |
5.3300 |
$1,000,000.00 |
|
|
Westpac |
AA- |
TD |
11/09/2023 |
11/09/2025 |
4.9900 |
$2,000,000.00 |
|
|
BankVic |
BBB+ |
TD |
29/07/2024 |
25/09/2025 |
5.3000 |
$2,000,000.00 |
|
|
Suncorp Bank |
AA- |
TD |
18/12/2024 |
15/10/2025 |
5.0500 |
$3,000,000.00 |
|
|
Westpac |
AA- |
TD |
31/10/2023 |
31/10/2025 |
5.4100 |
$2,000,000.00 |
|
|
Westpac |
AA- |
TD |
29/06/2023 |
25/11/2025 |
5.1000 |
$2,000,000.00 |
|
|
Suncorp Bank |
AA- |
TD |
28/11/2023 |
28/11/2025 |
5.3800 |
$3,000,000.00 |
|
|
Westpac |
AA- |
TD |
29/02/2024 |
16/12/2025 |
4.8800 |
$5,000,000.00 |
|
|
Australian Military Bank |
BBB+ |
TD |
24/06/2025 |
19/12/2025 |
4.4100 |
$5,000,000.00 |
|
|
BOQ |
A- |
TD |
11/01/2024 |
12/01/2026 |
4.8500 |
$2,000,000.00 |
|
|
NAB |
AA- |
TD |
18/12/2024 |
14/01/2026 |
4.9700 |
$5,000,000.00 |
|
|
NAB |
AA- |
TD |
28/01/2025 |
28/01/2026 |
4.9000 |
$2,500,000.00 |
|
|
Westpac |
AA- |
TD |
08/02/2024 |
09/02/2026 |
4.8400 |
$5,000,000.00 |
|
|
ING Bank (Australia) Ltd |
A |
TD |
11/03/2024 |
11/03/2026 |
4.8500 |
$5,000,000.00 |
|
|
NAB |
AA- |
TD |
18/12/2024 |
15/04/2026 |
4.8900 |
$2,000,000.00 |
|
|
Westpac |
AA- |
TD |
28/06/2024 |
28/04/2026 |
5.2000 |
$2,500,000.00 |
|
|
NAB |
AA- |
TD |
24/06/2025 |
04/05/2026 |
4.1900 |
$5,000,000.00 |
|
|
ING Bank (Australia) Ltd |
A |
TD |
25/09/2024 |
25/05/2026 |
4.5300 |
$5,000,000.00 |
|
|
BOQ |
A- |
TD |
31/01/2024 |
26/05/2026 |
4.8000 |
$2,000,000.00 |
|
|
Westpac |
AA- |
TD |
25/02/2025 |
15/06/2026 |
4.6200 |
$5,000,000.00 |
|
|
BOQ |
A- |
TD |
28/05/2024 |
28/07/2026 |
5.0000 |
$5,000,000.00 |
|
|
ING Bank (Australia) Ltd |
A |
TD |
26/08/2024 |
18/08/2026 |
4.6200 |
$3,000,000.00 |
|
|
NAB |
AA- |
TD |
30/06/2025 |
20/08/2026 |
4.0500 |
$5,000,000.00 |
|
|
Westpac |
AA- |
TD |
06/09/2023 |
07/09/2026 |
4.8800 |
$3,000,000.00 |
|
|
NAB |
AA- |
TD |
30/05/2025 |
14/10/2026 |
4.1000 |
$4,000,000.00 |
|
|
NAB |
AA- |
TD |
26/11/2024 |
05/11/2026 |
4.8000 |
$3,000,000.00 |
|
|
BOQ |
A- |
TD |
28/05/2024 |
26/11/2026 |
4.9500 |
$5,000,000.00 |
|
|
Hume Bank |
BBB+ |
TD |
26/08/2024 |
08/12/2026 |
4.5500 |
$5,000,000.00 |
|
|
Suncorp Bank |
AA- |
TD |
11/01/2024 |
11/01/2027 |
4.8800 |
$2,000,000.00 |
|
|
NAB |
AA- |
TD |
25/02/2025 |
25/02/2027 |
4.5500 |
$5,000,000.00 |
|
|
ING Bank (Australia) Ltd |
A |
TD |
25/09/2024 |
25/03/2027 |
4.5000 |
$2,000,000.00 |
|
|
NAB |
AA- |
TD |
26/02/2025 |
05/04/2027 |
4.5000 |
$5,000,000.00 |
|
|
BOQ |
A- |
TD |
20/03/2025 |
11/05/2027 |
4.4900 |
$3,000,000.00 |
|
|
BOQ |
A- |
TD |
06/03/2025 |
11/05/2027 |
4.5500 |
$3,000,000.00 |
|
|
Westpac |
AA- |
TD |
28/02/2025 |
16/06/2027 |
4.5000 |
$3,000,000.00 |
|
|
BOQ |
A- |
TD |
20/03/2025 |
08/07/2027 |
4.4900 |
$2,000,000.00 |
|
|
BOQ |
A- |
TD |
06/03/2025 |
08/07/2027 |
4.5500 |
$2,000,000.00 |
|
|
NAB |
AA- |
TD |
29/08/2025 |
19/08/2027 |
3.9500 |
$5,000,000.00 |
|
|
BOQ |
A- |
TD |
28/02/2025 |
13/10/2027 |
4.5000 |
$2,000,000.00 |
|
|
ING Bank (Australia) Ltd |
A |
TD |
24/06/2025 |
30/08/2028 |
4.0100 |
$2,000,000.00 |
|
|
ING Bank (Australia) Ltd |
A |
TD |
28/02/2025 |
28/02/2029 |
4.7000 |
$2,000,000.00 |
|
|
ING Bank (Australia) Ltd |
A |
TD |
30/05/2025 |
13/06/2029 |
4.2400 |
$5,000,000.00 |
|
|
Total cash and investments |
$161,716,516 |
||||||
|
Table 2: Interest from Cash and Investments |
|
|
Interest earned for August 2025 |
$571,010 |
|
Financial year to date interest earned |
$1,182,602 |
|
Revised Budgeted interest for 2025/2026 financial year |
$4,120,000 |
|
Percentage of the 2025/2026 budget earned by Council |
29% |
Council’s investment portfolio is largely directed towards term deposits (88%). The remainder of the portfolio is held in cash deposit accounts with CBA and TCorp (12%).
The investments held by Council remain sufficiently liquid with 61% of investments maturing within the next 12 months.
Council’s cash and investment portfolio has a weighted average maturity of 350 days.
For the month of August, the cash and investments held by Council provided a return of 4.84% p.a. This annualised performance exceeded the monthly RBA cash rate of 3.60% and the AusBond Bank Bill Index of 3.84%. The below table represents the annualised performance of council’s investment portfolio.

With the potential for interest rate cuts in the future and the maturing of higher yielding term deposits Council has been attempting to lock in rates across 1–5-year tenors. This aims to provide some protection against potential lowering rates.
Council continues to utilise the platform Imperium Markets, to assist in conducting, managing, and reporting on Council’s investments. This provides an automated process of sourcing quotes and investing monies which is allowing Council to better address investment risks. Additional to the platform, Arlo Advisory provide investment advice on the surrounding market conditions and how Council can maximise returns within the Ministerial Order and Council’s investment policy.
|
Table 3: Investments by Fund $’000 |
|||
|
June-2025 |
July-2025 |
August-2025 |
|
|
64,505 |
64,642 |
62,222 |
|
|
Water Fund |
28,582 |
24,032 |
29,552 |
|
Sewer Fund |
66,918 |
66,356 |
69,942 |
|
TOTAL |
160,005 |
155,030 |
161,716 |
Each Fund’s allocation can only be utilised for its specific operations. For example, Water Fund cannot use its financial resources on General Fund projects.
Included in the General Fund investments are amounts that are externally restricted for specific purposes, i.e. contributions and unspent grants. In addition, there are amounts that are internally restricted by Council.
The value of outstanding government grant debtors on 31 August 2025 is $559,611 with $0 aged 4+ months. Council continues to work with our funding partners to keep these debts minimised.
Legal /Policy
Section 625 of the Local Government Act 1993 (LG Act) determines money may only be invested in a type of investment authorised by Order of the Minister for Local Government and published in the Local Government Gazette. The current Ministerial Order of Investment was published 17 February 2011.
Clause 212 of the Local Government (General) Regulation 2021 (LG Regulations) determines the Responsible Accounting Officer must provide Council with a written report setting out details of all money Council has invested under Section 625 of the LG Act.
The report must also include a Certificate as to whether the investments have been made in accordance with the LG Act, LG Regulations and Council’s Investment Policy.
Council has an Investment Policy (policy number 6.07) adopted on 27 November 2024. The policy is reviewed every four years by Council and annually by Council officers.
Impacts on Strategic/Operational/Asset Management Plan/Risk
Strategic Alignment
This report is provided in accordance with Council’s Community Strategic Plan (CSP), 2025-2029 Delivery Program and operational Plan activities
CSP Strategy: E.3 Government services have well -governed financial and strategic management processes to ensure ongoing viability and value for money.
This reporting supports the implementation of Council’s adopted Delivery Plan 2025-2029 as identified through the following core business activity undertaken by the finance team to manage Council’s borrowings and investments in accordance with Council’s Finance Policy.
Environment and Climate Change
Council considers the importance of environmental, social and governance factors in investment decision making.
As at 31 August 2025, Council’s investment portfolio included $10 million of green certified investments.
Economic
Council’s investment policy objective is to maximise returns by investing with the most favourable rate of return. Performance of investments are reported monthly, quarterly and annually.
Risk
Council policies have strict guidelines to reduce Council’s risk to capital. The following graphs provide representation of Council’s compliance to these measures.
Risk management means our investments are made giving regard to key criteria of counterparty, credit quality and maturity compliance.
At 31 August, all cash and investments held are within the counterparty, credit quality and maturity policy limits.
Other legal instruments, such as the Ministerial Order referenced above, are also being used to mitigate financial risk.
Legend: Compliant Non-compliant
Counterparty Compliance

Credit Quality Compliance

Maturity Compliance

Social / Cultural
Maximising performance of returns enables the organisation to leverage additional funding received as a result of investment performance and use these towards community projects, programs and services.
Attachments
Nil
|
Item 10.6 |
10.6. Certificate of Investment September 2025
This report details Council’s cash and investments at 30 September 2025.
Director Organisational Services
1. That Council receive and note the report on Council’s investment position at 30 September 2025.
2. That Council notes the certification of the Responsible Accounting Officer.
Executive Summary
I, Judy Jordan, as the Responsible Accounting Officer of Bega Valley Shire Council, hereby certify the investments listed in the attached reports have been made in accordance with Section 625 of the Local Government Act 1993 (the LG Act) and clause 212 of the Local Government (General) Regulation 2021.
On 30 September 2025 the total capital value of cash and investments was $160,314,128 with 92% of Council’s investment portfolio directed to term deposits and the remainder held in cash deposit accounts. The following is investment information by fund:
|
Fund |
September-2025 ($’000) |
|
General Fund |
61,308 |
|
Water Fund |
29,155 |
|
Sewer Fund |
69,851 |
|
TOTAL |
160,314 |
All investments have been appropriately recorded in Council’s financial records, reconciled monthly.
Background
The Local Government Act 1993 and Local Government Regulation 2021 require that the Responsible Accounting Officer must present to Council monthly, the status of the investments held by Council. The Responsible Accounting Officer must detail the investments held, and their compliance with both internal policy and external regulation under the Ministerial Order of Investments.
Options
This is a receive and note report and does not require consideration of options for decision.
Community and Stakeholder Engagement
Engagement undertaken
There is no community or stakeholder engagement associated with the recommendation of this report.
Engagement planned
The investment details of Council are published in Council business papers and are publicly available at Council offices and on Council’s website.
Financial and Resource Considerations
A list of Council’s cash and investments held at 30 September 2025 is detailed below:
|
Table 1: Cash and Investments Listing |
||||||
|
Issuer |
Rating |
Type |
Purchase Date |
Maturity Date |
Interest Rate (%) |
Capital Value ($) |
|
Suncorp Bank |
AA- |
TD |
18/12/2024 |
15/10/2025 |
5.0500 |
3,000,000.00 |
|
Westpac |
AA- |
TD |
31/10/2023 |
31/10/2025 |
5.4100 |
2,000,000.00 |
|
Westpac |
AA- |
TD |
29/06/2023 |
25/11/2025 |
5.1000 |
2,000,000.00 |
|
Suncorp Bank |
AA- |
TD |
28/11/2023 |
28/11/2025 |
5.3800 |
3,000,000.00 |
|
Westpac |
AA- |
TD |
29/02/2024 |
16/12/2025 |
4.8800 |
5,000,000.00 |
|
Australian Military Bank |
BBB+ |
TD |
24/06/2025 |
19/12/2025 |
4.4100 |
5,000,000.00 |
|
BOQ |
A- |
TD |
11/01/2024 |
12/01/2026 |
4.8500 |
2,000,000.00 |
|
NAB |
AA- |
TD |
18/12/2024 |
14/01/2026 |
4.9700 |
5,000,000.00 |
|
NAB |
AA- |
TD |
28/01/2025 |
28/01/2026 |
4.9000 |
2,500,000.00 |
|
Westpac |
AA- |
TD |
08/02/2024 |
09/02/2026 |
4.8400 |
5,000,000.00 |
|
ING Bank (Australia) Ltd |
A |
TD |
11/03/2024 |
11/03/2026 |
4.8500 |
5,000,000.00 |
|
NAB |
AA- |
TD |
18/12/2024 |
15/04/2026 |
4.8900 |
2,000,000.00 |
|
Westpac |
AA- |
TD |
28/06/2024 |
28/04/2026 |
5.2000 |
2,500,000.00 |
|
NAB |
AA- |
TD |
24/06/2025 |
04/05/2026 |
4.1900 |
5,000,000.00 |
|
ING Bank (Australia) Ltd |
A |
TD |
25/09/2024 |
25/05/2026 |
4.5300 |
5,000,000.00 |
|
BOQ |
A- |
TD |
31/01/2024 |
26/05/2026 |
4.8000 |
2,000,000.00 |
|
Westpac |
AA- |
TD |
25/02/2025 |
15/06/2026 |
4.6200 |
5,000,000.00 |
|
BOQ |
A- |
TD |
28/05/2024 |
28/07/2026 |
5.0000 |
5,000,000.00 |
|
ING Bank (Australia) Ltd |
A |
TD |
26/08/2024 |
18/08/2026 |
4.6200 |
3,000,000.00 |
|
NAB |
AA- |
TD |
30/06/2025 |
20/08/2026 |
4.0500 |
5,000,000.00 |
|
Westpac |
AA- |
TD |
06/09/2023 |
07/09/2026 |
4.8800 |
3,000,000.00 |
|
Westpac |
AA- |
TD |
30/09/2025 |
30/09/2026 |
4.1700 |
5,000,000.00 |
|
NAB |
AA- |
TD |
30/05/2025 |
14/10/2026 |
4.1000 |
4,000,000.00 |
|
NAB |
AA- |
TD |
26/11/2024 |
05/11/2026 |
4.8000 |
3,000,000.00 |
|
BOQ |
A- |
TD |
28/05/2024 |
26/11/2026 |
4.9500 |
5,000,000.00 |
|
Hume Bank |
BBB+ |
TD |
26/08/2024 |
08/12/2026 |
4.5500 |
5,000,000.00 |
|
Westpac |
AA- |
TD |
30/09/2025 |
06/01/2027 |
4.1400 |
4,000,000.00 |
|
Suncorp Bank |
AA- |
TD |
11/01/2024 |
11/01/2027 |
4.8800 |
2,000,000.00 |
|
NAB |
AA- |
TD |
25/02/2025 |
25/02/2027 |
4.5500 |
5,000,000.00 |
|
ING Bank (Australia) Ltd |
A |
TD |
25/09/2024 |
25/03/2027 |
4.5000 |
2,000,000.00 |
|
NAB |
AA- |
TD |
26/02/2025 |
05/04/2027 |
4.5000 |
5,000,000.00 |
|
BOQ |
A- |
TD |
20/03/2025 |
11/05/2027 |
4.4900 |
3,000,000.00 |
|
BOQ |
A- |
TD |
06/03/2025 |
11/05/2027 |
4.5500 |
3,000,000.00 |
|
Westpac |
AA- |
TD |
28/02/2025 |
16/06/2027 |
4.5000 |
3,000,000.00 |
|
BOQ |
A- |
TD |
20/03/2025 |
08/07/2027 |
4.4900 |
2,000,000.00 |
|
BOQ |
A- |
TD |
06/03/2025 |
08/07/2027 |
4.5500 |
2,000,000.00 |
|
NAB |
AA- |
TD |
29/08/2025 |
19/08/2027 |
3.9500 |
5,000,000.00 |
|
BOQ |
A- |
TD |
28/02/2025 |
13/10/2027 |
4.5000 |
2,000,000.00 |
|
ING Bank (Australia) Ltd |
A |
TD |
24/06/2025 |
30/08/2028 |
4.0100 |
2,000,000.00 |
|
BankVic |
BBB+ |
TD |
25/09/2025 |
25/09/2028 |
4.0800 |
2,000,000.00 |
|
ING Bank (Australia) Ltd |
A |
TD |
28/02/2025 |
28/02/2029 |
4.7000 |
2,000,000.00 |
|
ING Bank (Australia) Ltd |
A |
TD |
30/05/2025 |
13/06/2029 |
4.2400 |
5,000,000.00 |
|
Commonwealth Bank |
AA- |
CASH |
30/09/2025 |
30/09/2025 |
3.6000 |
7,167,762.19 |
|
Commonwealth Bank |
AA- |
CASH |
30/09/2025 |
30/09/2025 |
3.6500 |
5,000,000.00 |
|
NSWTC IM SCF |
AA- |
CASH |
30/09/2025 |
30/09/2025 |
0.0000 |
146,365.66 |
|
Totals |
160,314,127.85 |
|||||
|
Table 2: Interest from Cash and Investments |
|
|
Interest earned for September 2025 |
$518,547 |
|
Financial year to date interest earned |
$1,701,149 |
|
Revised Budgeted interest for 2025/2026 financial year |
$4,120,000 |
|
Percentage of the 2025/2026 budget earned by Council |
41% |
Council’s investment portfolio is largely directed towards term deposits (92%). The remainder of the portfolio is held in cash deposit accounts with CBA and TCorp (8%).
The investments held by Council remain sufficiently liquid with 59% of investments maturing within the next 12 months.
Council’s cash and investment portfolio has a weighted average maturity of 393 days.
For the month of September, the investments held by Council provided a return of 4.80% p.a. This annualised performance exceeded the monthly RBA cash rate of 3.60% and the AusBond Bank Bill Index of 3.62%. The below table represents the annualised performance of council’s investment portfolio.

With the potential for interest rate cuts in the future and the maturing of higher yielding term deposits Council has been attempting to lock in rates across 1–5-year tenors. This aims to provide some protection against potential lowering rates.
Council continues to utilise the platform Imperium Markets, to assist in conducting, managing, and reporting on Council’s investments. This provides an automated process of sourcing quotes and investing monies which is allowing Council to better address investment risks. Additional to the platform, Arlo Advisory provide investment advice on the surrounding market conditions and how Council can maximise returns within the Ministerial Order and Council’s investment policy.
|
Table 3: Investments by Fund $’000 |
|||
|
Fund |
July-2025 |
August-2025 |
September-2025 |
|
General Fund |
64,642 |
62,222 |
61,308 |
|
Water Fund |
24,032 |
29,552 |
29,155 |
|
Sewer Fund |
66,356 |
69,942 |
69,851 |
|
TOTAL |
155,030 |
161,716 |
160,314 |
Each Fund’s allocation can only be utilised for its specific operations. For example, Water Fund cannot use its financial resources on General Fund projects.
Included in the General Fund investments are amounts that are externally restricted for specific purposes, i.e. contributions and unspent grants. In addition, there are amounts that are internally restricted by Council.
The value of outstanding government grant debtors on 30 September 2025 is $763,925 with $3,496 aged 4+ months. Council continues to work with our funding partners to keep these debts minimised.
Legal /Policy
Section 625 of the Local Government Act 1993 (LG Act) determines money may only be invested in a type of investment authorised by Order of the Minister for Local Government and published in the Local Government Gazette. The current Ministerial Order of Investment was published 17 February 2011.
Clause 212 of the Local Government (General) Regulation 2021 (LG Regulations) determines the Responsible Accounting Officer must provide Council with a written report setting out details of all money Council has invested under Section 625 of the LG Act.
The report must also include a Certificate as to whether the investments have been made in accordance with the LG Act, LG Regulations and Council’s Investment Policy.
Council has an Investment Policy (policy number 6.07) adopted on 27 November 2024. The policy is reviewed every four years by Council and annually by Council officers.
Impacts on Strategic/Operational/Asset Management Plan/Risk
Strategic Alignment
This report is provided in accordance with Council’s Community Strategic Plan (CSP), 2025-2029 Delivery Program and operational Plan activities
CSP Theme: Our civic leadership – Local leadership is strong, consultative and responsive to our community’s needs.
CSP Strategy: E.3 Government services have well -governed financial and strategic management processes to ensure ongoing viability and value for money.
This reporting supports the implementation of Council’s adopted Delivery Plan 2025-2029 as identified through the following core business activity undertaken by the finance team to:
· Manage Council’s borrowings and investments in accordance with Council’s Financial Strategy
Environment and Climate Change
Council considers the importance of environmental, social and governance factors in investment decision making.
As at 30 September 2025, Council’s investment portfolio included $10 million of green certified investments.
Economic
Council’s investment policy objective is to maximise returns by investing with the most favourable rate of return. Performance of investments are reported monthly, quarterly and annually.
Risk
Council policies have strict guidelines to reduce Council’s risk to capital. The following graphs provide representation of Council’s compliance to these measures.
Risk management means our investments are made giving regard to key criteria of counterparty, credit quality and maturity compliance.
At 30 September 2025, all cash and investments held are within the counterparty, credit quality and maturity policy limits.
Other legal instruments, such as the Ministerial Order referenced above, are also being used to mitigate financial risk.
Legend: Compliant Non-compliant
Counterparty Compliance
Long term Compliance

Credit Quality Compliance

Maturity Compliance

Social / Cultural
Maximising performance of returns enables the organisation to leverage additional funding received as a result of investment performance and use these towards community projects, programs and services.
Attachments
Nil
|
Council |
15 October 2025 |
Staff Reports - Executive
15 October 2025
11.1 Appointment of delegated authority to Bega Valley Awards Committee........ 269
|
Item 11.1 |
11.1. Appointment of delegated authority to Bega Valley Awards Committee
This report seeks converting the Bega Valley Shire Awards Committee to a committee of the whole.
Chief Executive Officer
That Council:
1. Convert the Bega Valley Shire Awards Committee to a committee of the whole
2. Notify the volunteers currently on the Bega Valley Shire Awards Committee of the decision
3. Update the Bega Valley Shire Awards Committee Terms of Reference
Executive Summary
Under the NSW Local Government Act 1993, councils are given extensive functions in respect to the operation of a wide range of activities.
(1) The NSW Local Government Act General Regulation 2005 advises that:
(2) A council may, by resolution, establish such committees as it considers necessary.
(3) A committee is to consist of the Mayor and such others as are elected by, or appointed by the council.
The Committee is delegated to make decisions about awards offered by Bega Valley Shire Council. In making its determination the Committee will consider the guidelines Terms of Reference (attached) associated with the relevant award.
Awards in each year may be, but not limited to the following, noting all awards may not be presented in any given year:
· Citizen of the Year
· Young Citizen of the Year
· Senior Citizen of the Year
· Bega Valley Medallion
Application forms and criteria for the award categories are developed by staff and provided to the community with appropriate timeframes to allow nominations to be submitted for consideration by the Committee.
Background
At the 2024.10.09 Extraordinary Council meeting it was resolved to:
3.5 Establishment of Committees with Delegated Authority and Advisory Committees
RESOLVED on the motion of Crs Daly and O'Neil
That Council:
1. Establish, adopt the Terms of Reference and delegate the functions as described in the relevant guidelines for the following Section 355 Committees:
a) General Cemetery Advisory Committee
b) General Community Halls Committee
c) General Sportsground Committee
d) Montreal Goldfields Management Committee
e) Bega Valley Shire Awards Committee
2. Establish and adopt the Terms of Reference for the following Advisory Committees:
a) Audit, Risk and Improvement Committee
b) Bega Valley Community Disaster Relief Fund
c) Access and Inclusion Advisory Committee
d) Bega, Eden, Merrimans Aboriginal Liaison Committee
e) Central Waste Facility Community Consultation Committee
f) Coastal Planning and Flood Management Committee
g) Police Liaison Committee
h) Bega Valley Museum Advisory Group
i) Local Traffic Committee
j) Saleyards Advisory Group
k) Affordable Housing Implementation Group
3. That council do not re-establish the Bega Valley Shire Grants Committee.
4. Endorse the existing membership list attached to this report be appointed and remain on the committees without the need for a full re-application. These members must participate and successfully complete induction within 6 months of this appointment.
5. Call for expressions of interest from the community to fill any vacant positions on each committee.
6. Contact agencies requested to join relevant committees asking them to nominate a delegate to the committee.
7. Receive and note advice regarding the development of guidelines for the Saleyards Advisory Group.
8. Council signal its intent to convert the Bega Valley Shire Awards Committee to a committee of the whole in 2025 with a future report to be considered
IN FAVOUR: Crs Allen, Daly, Fitzpatrick, Haggar, Mudaliar, Nadin, Noble, O'Neil and Porter
AGAINST: Nil
Options
There are two options to be considered:
1. Convert the Bega Valley Shire Awards Committee to a committee of the whole
2. Leave the committee as it currently is:
· The Mayor as Chairperson,
· Two Councillors
· Two community members appointed by resolution of the elected Council, and
· The Director Community, Environment and Planning or their delegate.
Community and Stakeholder Engagement
Engagement undertaken
The Community was made aware of the intent to convert the Bega Valley Shire Awards Committee to a committee of the whole through the 2024.10.09 Extraordinary Council meeting minutes being uploaded to Council’s website.
Engagement planned
There is no Engagement planned pertaining to this report.
Financial and Resource Considerations
There are no financial or resource considerations to be considered pertaining to this report.
Legal /Policy
There are no legal/policy implications pertaining to this report.
Impacts on Strategic/Operational/Asset Management Plan/Risk
Strategic Alignment
E.1 Lead, govern and regulate in an ethical, equitable, transparent and accountable way.
Environment and Climate Change
There are no environment or climate change implications pertaining to this report.
Economic
There are no economic implications pertaining to this report.
Risk
There are no risks pertaining to this report.
Social / Cultural
There are no social/cultural implications associate with this report.
Attachments
1⇩. Bega Valley Awards Committee Terms of Reference
|
Council |
15 October 2025 |
Notices of Motion
15 October 2025
14.1 Secondary dwellings.......................................................................................... 280
|
Item 14.1 |
14.1. Cr Peter Haggar - Secondary dwellings
That Council
1. Waives section 7.11 contributions on secondary dwellings for an initial period of 2 years.
2. Implements a 2-year trial whereby secondary dwellings are charged s64 contributions at 0.25 ET for water and 0.25 for sewer, regardless of the number of bedrooms.
3. Encourages the community and developers to consider pre‑fabricated and modular housing options, as well as complying development pathways, in suitable locations, with a view to increasing density in our sewered towns and villages.
4. Provides updated information to the community about the different types of housing that can be considered across the shire, including dual occupancies, terraces, town houses, villas, manor houses and rural land sharing, particularly following recent changes Council has made to the enable greater diversity of housing types and density in our sewered towns and villages, and if required, a budget bid be considered by Council as part of the FY27 budget deliberations to support this work.
5. Investigates the legality of developing a broad definition of ‘household member’ that can be used in the proposed Local Approvals Policy currently being developed by staff.
6. Continues to advocate to the NSW State Government to urgently complete its review of, and update to, the relevant legislation to provide clarity regarding caravans and moveable dwellings.
Background
It is proposed to provide relief from section 7.11 contributions on secondary dwellings where there is no subdivision. It is intended by the motion that Section 7.11 to be implemented on applicable secondary dwelling developments if a subdivision is carried out either at the time of the development or any time subsequently. The relief is proposed to be in place for long enough to provide some certainty for the market to develop new dwellings. A moratorium until the first year of the next term of council would both provide a reasonable length of time and allow decisions about its continuation or termination to be taken with the maximum political breathing space.
Economic Cost: As the uptake on secondary dwellings (at least ones carried out with council approval) is low, and as the expectation is that secondary dwellings would be additional to other planned housing, the expectation is that the economic cost to Council would be minimal.
Contribution to Council services: We know from census data and (other data we have workshopped) that our towns have 3 and 4 bedroom houses housing an average of 2x humans. On average secondary dwellings are restoring population rather than increasing it.
Affordable Housing: This policy has the possibility of helping to alleviate the housing crisis in several ways.
i. Family reunion – families could install a secondary dwelling for the original owners and free up the primary residence for children with growing families (or the other way round). The community advantages of enabling multi-generational living are already known to our older agricultural families. This is particularly important to our younger generations who are being priced out of home ownership both by rising prices and longer living parents (the kids don’t need to wait to inherit)
ii. The potential for equity in existing housing stock to be positively geared i.e. the servicing of debt less than rental income providing additional needed rental housing stock, particularly in our towns and villages
iii. The provision of medium-term rental accommodation for service workers and to allow for expected employee numbers at the factory
STRAs or the air BnB problem: While it is possible (or even likely) that this policy will be used by some to build dwellings for the purpose of short-term rentals there would be significant (ameliorating) differences from the traditional STRA in that:
i. They needn’t result in ‘empty streets’ in the way that the current STRA model does. ie owners who rent out a secondary dwelling for holiday accommodation (or move into the secondary and rent the big house) will still be onsite resulting in community maintenance and onsite behaviour moderation.
ii. Tourist accommodation is still an important part of our coastal community and provide valuable tourist dollars and employment.
The proposal to reduce the s64 water and sewer contributions for 2 bedroom secondary dwellings is intended to make it easier to build two bedroom dwellings which are preferable to single bedroom dwellings as they provide more options and are arguably more aesthetically pleasing in that there are plenty of decent offerings in the modular 2 bedroom space.
Staff response
Part 1 of the motion
The current Infrastructure Contributions Plan, adopted in September 2024, introduced s7.11 contributions for secondary dwellings. While the rationale for this was to ensure the extra impact on infrastructure was adequately shared by all development, the elected Council has delegation to waive fees and charges. If Council is of a mind to waive s7.11 contributions for secondary dwellings, it is recommended that an initial period of 2 years allows the market to adjust and Council to determine whether the fee waiver is successful in encouraging further development.
Council could also consider refunding the 7.11 contributions for secondary dwellings paid by applicants since the revised contributions plan was implemented in late 2024. This would apply to around 3 DAs for secondary dwellings.
Part 2 of the motion
Section 64 contributions are used to recover part of the costs of water and sewer infrastructure that will be impacted by a development. These contributions are levied by Council to ensure that the infrastructure can handle the increased demand from the development. The amount of the contributions depends on the loading that the proposed development will place on the water supply and/or sewerage systems. The greater the loading on the systems, the greater the developer charges amount payable.
To achieve the intent of the motion, a 2 year trial could be implemented whereby secondary dwellings are charged at 0.25 ET for water and 0.25 for sewer, regardless of the number of bedrooms.
Part 3 and 4 of the motion
There are many different housing options available to residents in the Bega Valley Shire. Additionally, changes have been made to the Bega Vally Local Environmental Plan (LEP) over recent years to incentivise development and support a broader range of housing typologies. These include reduced minimum lot sizes, greater ability for housing connected to commercial premises in the central business districts, increased subdivision potential, and permitting secondary dwellings in every zone except RU4. There are also a variety of housing types such as dual occupancies, terraces, town houses, villas and manor houses that are available across the shire, as well as rural land sharing.
Complying development is an alternative to a full development application that can be used by applicants/owners depending on their situation. This is another area that could benefit from further promotion. For example, secondary dwellings may be able to use the complying development pathway if they comply with the provisions contained in Schedule 1 of the Housing SEPP.
Council staff are currently focused on streamlining resources for applicants and developers to improve the quality of applications received and reduce DA assessment timeframes further. Following this, we will focus on informing the community about the different housing types and options available across the shire.
Additional resources may be required to augment this work, which will be considered as part of the FY27 budget process.
Additionally, the State Government’s NSW Housing Pattern Book is applicable in the Bega Valley Shire, however the complying development pathway is removed when there are constraints such as bushfire prone land or flooding risk. People interested in using the Pattern Book may still benefit from a reduced cost for design work, however in many cases will also need to lodge a development application.
Part 5 of the motion
Staff will be seeking advice and review of the draft Local Approvals Policy (LAP) currently under development and can investigate whether it is possible to develop a broad definition of ‘household member’ as part of this process.
Part 6 of the motion
Council staff have been advocating to state government Ministers, departments, Local Government NSW and the Planning Institute of Australia (PIA) to seek urgent finalisation of the governments review. This work will continue.
Based on advice from the Department of Planning, Housing and Infrastructure in May 2025, Council understands that:
· The exhibited reforms have not been adopted as Government has been focused on other housing-related priorities. Some of the issues that the consultation draft was seeking to address are likely to be resolved by work that the Department of Customer Service is doing in relation to the review of the Home Building Act 1989.
· It is understood that the Department of Customer Service project will involve introducing construction standards and certification pathways for prefabricated building work.
· The DCS reforms are also likely to include amendments to the existing definitions of caravan, manufactured home and moveable dwelling. It is expected that new definitions will resolve uncertainty about the status of expandable homes that are currently marketed as caravans.
No clear timeframe has been provided for this work.
Recently, the state government announced a new Planning Bill that is intended to streamline some elements of the planning framework, however more information is required to understand the full impacts of the proposed changes.
Staff have also been advocating directly to the NSW Building Commissioner to address these issues.
Cr Peter Haggar
Attachments
Nil
|
Council |
15 October 2025 |
Questions with Notice
15 October 2025
15.1 Cr Daly - Shellharbour Council Local Environment Plan amendments............. 285
15.2 Cr O'Neil - Draft submission into rural housing and secondary dwelling reform 289
|
Item 15.1 |
15.1. Cr Daly - Shellharbour Council Local Environment Plan amendments
Can staff provide details of how Shellharbour Council are amending their Local Environment Plan (LEP) to provide a planning pathway for mobile tiny homes to be installed on residential blocks?
Is a similar approach applicable in the Bega Valley?
Cr Simon Daly
Staff response
The process will involve submission of a planning proposal to the Department of Planning, Housing and Infrastructure for Gateway determination and may take six to 12 months for determination and its processing.
A copy of Shellharbour Proposed LEP reported to Council is attached for your information.
In response to your request for advice on whether a similar approach could be pursued within our local government area, staff have undertaken a preliminary review of the Shellharbour model and its potential applicability to our planning framework.
The following key considerations are noted:
Exempt development may be carried out without the need for development consent under the Act. Such development is not exempt from any approval, licence, permit or authority that is required under any other Act and adjoining owners’ property rights and the common law still apply
The pilot program is for dwellings in residential areas only where there is already an existing dwelling.
Shellharbour defines the type of dwelling as one that is If registered as a motor vehicle, must not exceed a length of 12.5m, a width of 2.5m, and a height of 4.3m. or if registered as a trailer, must not exceed a length of 12.3m, a width of 2.5m, and a height of 4.3m.
Dwellings under this proposal must not be located in on land that is:
a) Flood-prone land,
b) Bushfire-prone land,
c) Land which contains Heritage items or draft Heritage items,
d) Land in a foreshore area,
e) Land in an environmentally sensitive area,
f) Contaminated lands
Dwelling must also meet defined setback requirements and standards as outlined in the building code.
Planning Instrument Constraints
While Shellharbour’s proposal is innovative, it remains subject to approval by the NSW Department of Planning, Housing and Infrastructure. At present, the Standard Instrument LEP does not explicitly accommodate THOWs as permanent dwellings.
Compliance and Infrastructure Implications
Internal discussions have highlighted several operational concerns, including:
The need for Section 68 approvals under the Local Government Act for movable dwellings. [Follow up]
Potential impacts on infrastructure capacity, waste management, and emergency access.
Enforcement challenges if THOWs are permitted without clear regulatory mechanisms.
Staff are continuing to monitor the progress of Shellharbour’s proposal and are engaging with planning peers and legal advisors to assess the feasibility of a similar amendment locally
Attachments
1⇩. Draft Local Environmental Plan Provisions
|
Item 15.2 |
15.2. Cr O'Neil - Draft submission into rural housing and secondary dwelling reform
Would Council staff brief Council on their initial response to the Draft Environmental Planning and Assessment (Planning System Reforms) Bill 2025 and its implications for the Bega Valley Shire?
Would they also report on issues they recommend the Council provide to the State Government as matters to be considered in refining, improving and finalising the Bill?
Cr Helen O’Neil
Staff response
Based on a preliminary review by staff there are some positive aspects proposed in the Bill, however there are some aspects that may lead to potentially negative consequences. As an example there are some components aimed at streamlining simple variations to complying development standards, however this may come at the expense of adjoining properties having the opportunities to make submissions on the proposed development. There is also the intention to give the Planning Secretary the delegation to make decisions on behalf of other agencies that would normally be required to provide concurrence for certain developments. How this practically applies as well as the impacts are unclear. These are only a couple of examples of proposed changes with numerous components in the Bill. In the opinion of Councils CEO the proposed changes could be anticipated to enable more development faster, however this could result in some undesirable consequences. In reality until a new act is in place and developers, practitioners and communities start to operate within the anew act it is difficult to predict what the actual impacts will be. Furthermore, until courts start to create new precedents interpreting the new act clauses it is difficult to predict how positive and practical the changes are. This is being reflected in commentary by various environmental and planning legal practitioners in online forums. On the whole sentiment is positive that the proposed changes will enable more development in shorter timeframes.
Council has not allocated any dedicated resources to comprehensively reviewing the Bill (and this is not something we commonly do) and interpreting legislation and its practical application is a relatively specialised field.
Attachments
Nil
|
Council |
15 October 2025 |
Questions without Notice
15 October 2025
16.1 Cr Nadin - Merimbula CBD planning works....................................................... 291
16.2 Cr Mudaliar - Eden netball courts..................................................................... 293
|
Item 16.1 |
16.1. Cr Nadin - Merimbula CBD planning works
At the ordinary meeting of 17 September 2025 Cr Nadin asked for an update on where the Merimbula CBD planning work is at?
Director Infrastructure, Mr Ian Macfarlane took the question on notice.
Director Infrastructure
Project summary
The Merimbula CBD upgrade includes extensive traffic calming measures to implement traffic flow change recommendations from the Merimbula Transport Study Recommendations Report and the Merimbula Transport Study-CBD Landscape Masterplan Assessment.
Council is planning to undertake a trial of the proposed changes over six to eight weeks in March to May 2026
The trial aims to validate safety, accessibility and public amenity in the town centre by temporarily reconfiguring traffic flow, enhancing pedestrian crossings, reclaiming sections of the road network for community use and activating key civic spaces.
As part of a broader strategy to create a more walkable and vibrant coastal destination, the project will implement temporary infrastructure such as mini roundabouts, signage upgrades, barrier-defined kerb extensions and reconfigured parking to assess the effectiveness of various traffic calming and placemaking interventions.
Once these trials are completed and the outcomes formalised, the project planning team will progress to the Merimbula CBD upgrade Master Plan detail design.
Staff response
A project management kick-off meeting was held on 28 November 2024 and a project manager was appointed.
Project planning has commenced, and a Project Management Plan (PMP) has been drafted.
The project is meeting the grant milestones with milestone reports 1 & 2 completed on time and the remaining milestones are also on track.
The following actions have been undertaken to date:
· Preliminary design works have been undertaken for undergrounding the overhead electricity reticulation along Market Street. A Design Information Package and a high-level concept design has been completed to remove the power poles and put the power lines underground including a cost estimate. This information allows Council to apply for funding opportunities as they arise to progress the work.
· Investigations into the existing underground services and infrastructure have been completed and mapped for future upgrading reference.
· A Review of Environmental Factors (REF) report has been drafted by an Environmental Consultant and is with Council’s Planning team for determination.
· A System Safety Assessment (SSA) of the Merimbula CBD has been completed as a priority in a suite of SSAs commissioned by Council with the recommendations being updated into the traffic trial plans.
· A Traffic Engineer has been engaged to provide the design plans for the traffic trials Traffic Calming Measures (TCM) to be implemented next year. The plans will be submitted to the Local Transport Forum (LTF) October 2025 meeting for review. Feedback from the LTF will then be updated into the final TCM plans. Once the TCM plans are complete we will then go out to tender for the implementation, we anticipate this tender to be advertised and closed by the end of December 2025, with the successful contractor engaged in the 2026 new year. Once these trials are completed and the feedback from the trials formalised, Council will then progress the Merimbula CBD Master plan upgrade detail design for construction and estimating purposes.
· Concept design work is progressing for Hyland’s Corner upgrade in conjunction with the Merimbula Chamber of Commerce & Bega Valley Business team leaders. The concept includes the following:
§ Structural foundation for Christmas tree Installation
§ Consideration of potential for a free-standing advertising digital sign (subject to resolution of management and operations matters and a development application)
§ Timber stage platform like the structures surrounding Monaro & Market Street intersection
§ Roof cover of part of the timber stage platform
§ Bollards to the side of the driveway that goes through Hyland’s Corner.
§ Removal of the existing furniture and installation of new furniture.
§ Pavement interaction play space to the central open space area
Attachments
Nil
|
Item 16.2 |
16.2. Cr Mudaliar - Eden netball courts
Cr Mudaliar asked can staff advise what plans are in place to improve the netball courts in Eden and what work has been done to progress the improvements?
Chief Executive Officer, Anthony McMahon advised yes, plans are in place. We have applied for grant funding previously and will bring a further response back to the next council meeting with what is being done so it is publicly known.
Director Infrastructure
Staff response
The Eden netball courts are aging, in poor condition and do not meet community expectations or current standards. Council has been aware of the poor condition of the Eden Netball courts for several years.
They are identified as a project for renewal in the Barclay Street Sports Precinct Master Plan (attached). The masterplan includes 2 typical netball / basketball courts (similar to Bermagui) as well as adapting 2 existing tennis courts to be multipurpose courts.
Court provision in the adopted masterplan considered asset provision and levels of use, population size, the option utilising tennis courts as multiuse courts, and the option to use the courts throughout the week.
Major issues with the current netball courts include:
· The run off area is very small and does not meet current standards
· The courts are subject to inundation from Lake Curalo
· Floodlights are poor.
There are limited options to do short term or interim repairs for these items. To address them would require major works, including:
· Demolition of existing concrete edges
· Earthworks and subgrade preparations and leveling
· 2x court surface (asphalt) and edging for multipurpose courts
· Line marking for multipurpose (netball and basketball)
· 4 x reversible basketball/netball towers.
· Upgrade eight lighting / poles from wood to steel pylons and globes to 100 LUX.
· Spectator seating
· Chain wire fence along Curalo Lake.
Staff have submitted unsuccessful funding applications for the project through the following grant programs:
· Federal Play our Way Program 2024 – Netball / Basketball & Tennis court upgrades
· NSW Office of Sport Level The Playing Field Program
2023 – Netball / Basketball court upgrades.
Other projects included in the Barclay Street Sports Precinct Master Plan which have been completed include:
· Floodlighting upgrades AFL and soccer
· AFL / cricket pavilion upgrade
· AFL / cricket carpark upgrade
· 1/4 basketball court renewal
· Skatepark
· Inclusive play space
· Parkland improvements (BBQ, shelter, seating, paths).
The project to upgrade the current aging netball courts to become 2x multipurpose courts has merit demonstrated through:
· Very strong links to women’s / girls’ participation / accessibility / multi use facilities
· Leverages on all other work done at the site
· Direct link to the Council endorsed Barclay Street masterplan.
The project is included in the current BVSC Funding Our Future document and advocacy ongoing. The project is identified in the currently adopted long term financial plan, however, does not have funding allocated until 2033. Staff will look to allocate resources to further project development design if they become available.
The current committee is enthusiastic and proactive, and this is demonstrated through good participation numbers.
Attachments
1⇩. Barclay Street masterplan 15.7.2020